PAG – MANDRE, APARTMAN 76,9 M2, PRODAJA, NOVO,POGLED, LOKACIJA!!

Opis

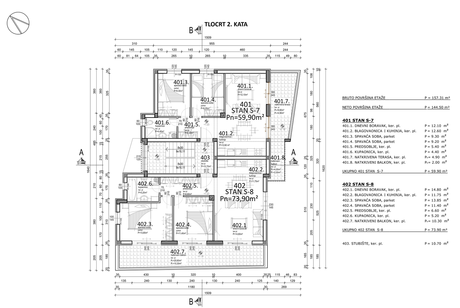
Pag – Mandre, prodaje se dvosobni apartman od 76,9 m2 na drugom katu stambenog objekta u izgradnji sa ukupno osam apartmana, kvalitetna gradnja. Sastoji se od: dvije spavaće sobe, dnevnog boravka + kuhinja + blagovaona, predsoblja, kupaonice i terase. IZ APARTMANA SE PRUŽA POGLED NA MORE!!! Nalazi se na odličnoj lokaciji 350 m udaljen od mora i plaže, blizina restorana, kafića, trgovine te svih ostalih sadržaja potrebnih za ugodan i miran odmor!!! Posjeduje parkirno mjesto. Mogućnost ugradnje podnog grijanja (vodeno podno grijanje na el. blok) do 01.09.2025 uz nadoplatu. Dokumentacija uredna. Gledati tlocrt stan oznake S8. Specifikacija površina: – stambena površina: 73,90 m2 – parkirno mjesto: 12,50 m2 koef = 3 m2.

Svojstva

  • Pogled na more

Instalacija

  • Elektricitet
  • Septička jama
  • Voda

Karakteristike

  • Balkon

Galerija

Podaci

Lokacija Mandre
Kategorija Apartman za odmor
Kupaonice 2025
Stambeni prostor ili površina okućnice 76.9 m²
Površina vrta
Ukupno soba 2
Broj spavaćih soba 2
Broj kupaonica 2

Karta

Prodajna cijena:

plus 3% provizije za posredovanje, javnobilježničke i zemljišnoknjižne troškove

Kontaktirajte prodajno osoblje

Bettina Lautenschlager

Zatražite više informacija

Prodajna cijena:

€ 335’000.-