PAG – MANDRE, APARTMAN 78,91 M2, PRODAJA, NOVO, LOKACIJA!!!

Opis

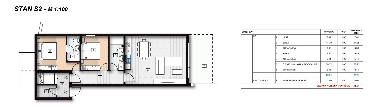
Pag – Mandre, prodaje se dvosobni apartman od 78,91 m2 u prizemlju stambenog objekta sa ukupno sedam apartmana u izgradnji, visokokvalitetna gradnja, planirano useljenje 06/2025 godine. . Sastoji se od: dvije spavaće sobe, dnevnog boravka + kuhinja + blagovaona, hodnika, dvije kupaonice i natkrivene terase. . Nalazi se na odličnoj lokaciji 220 m udaljeno od mora i plaže, blizina restorana, kafića, trgovine te svih ostalih sadržaja potrebnih za ugodan odmor!! . Posjeduje parkirno mjesto i spremište od 2,41 m2. . Dokumentacija uredna.

Svojstva

Instalacija

  • Elektricitet
  • Internet
  • Septička jama
  • Telefon
  • Voda

Karakteristike

  • Smočnica
  • Terasa

Galerija

Podaci

Lokacija Mandre
Kategorija Apartman za odmor
Kupaonice 2024
Stambeni prostor ili površina okućnice 78.91 m²
Površina vrta
Ukupno soba 2
Broj spavaćih soba 2
Broj kupaonica 2

Karta

Prodajna cijena:

plus 3% provizije za posredovanje, javnobilježničke i zemljišnoknjižne troškove

Kontaktirajte prodajno osoblje

Bettina Lautenschlager

Zatražite više informacija

Prodajna cijena:

€ 276’185.-