PAG – MANDRE, APARTMAN 83,60 M2, PRODAJA, POGLED, LOKACIJA, NOVO!!!

Opis

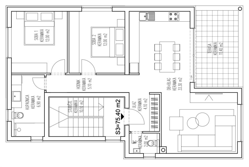
Pag – Mandre, prodaje se dvosobni apartman od 83,60 m2 na drugom katu stambenog objekta sa ukupno tri apartmana u izgradnji, planirano useljenje proljeće 2027 godine. Kvalitetna gradnja, visokokvalitetne pločice u cijelom stanu, kupaonica s tušem i umivaonikom, klima uređaj u svakoj spavaćoj sobi i dnevnom boravku, itd… Sastoji se od: dvije spavaće sobe, dnevnog boravka + kuhinja + blagovaona, hodnika, wc-a, kupaonice i terase. SA TERASE SE PRUŽA POGLED NA MORE!!! Nalazi se na odličnoj lokaciji 250 m udaljen od mora i plaže, blizina dječjeg igrališta, trgovine, restorana, kafića te svih ostalih sadržaja za ugodan i miran odmor!!! Posjeduje parkirno mjesto. Dokumentacija uredna. Tlocrt gledati stan S3.

Svojstva

  • Pogled na more

Instalacija

  • Elektricitet
  • Septička jama
  • Voda

Karakteristike

  • Balkon

Galerija

Podaci

Lokacija Mandre
Kategorija Apartman za odmor
Kupaonice 2026
Stambeni prostor ili površina okućnice 83.6 m²
Površina vrta
Ukupno soba 2
Broj spavaćih soba 2
Broj kupaonica 2

Karta

Prodajna cijena:

plus 3% provizije za posredovanje, javnobilježničke i zemljišnoknjižne troškove

Kontaktirajte prodajno osoblje

Bettina Lautenschlager

Zatražite više informacija

Prodajna cijena:

€ 299’000.-