PAG – POVLJANA, APARTMAN 60,24 M2, PRODAJA, POGLED, NOVO, LOKACIJA!!!

Opis

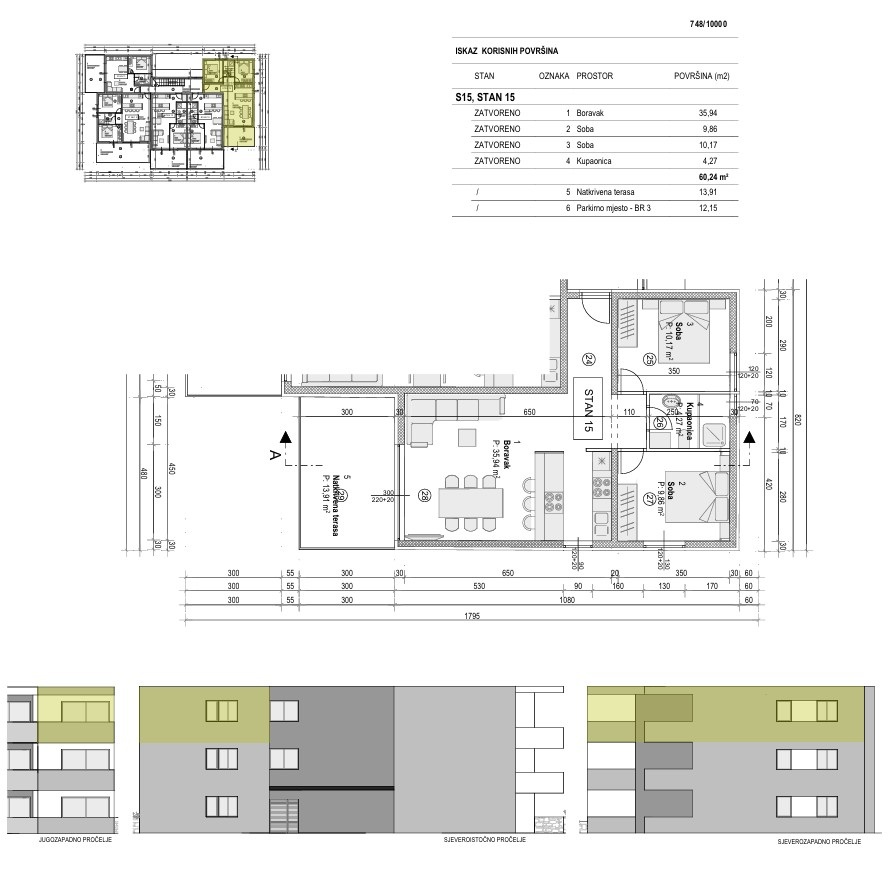
Pag – Povljana, prodaje se dvosobni apartman od 60,24 m2 na drugom katu stambenog objekta sa ukupno petnaest apartmana u izgradnji, planirano useljenje ljeto/2026. Sastoji se od: dvije spavaće sobe, dnevnog boravka + kuhinja + blagovaona, kupaonice i terase. IZ APARTMANA SE PRUŽA POGLED NA MORE!!! Nalazi se na odličnoj lokaciji 300 m udaljen od mora i plaže Mali Dubrovnik, 600 m od plaže Dubrovnik, blizina trgovine, kafića, restorana te svih ostalih sadržaja potrebnih za ugodan odmor!! Posjeduje parkirno mjesto. Dokumentacija uredna. Gledati tlocrt stan oznake S15.

Svojstva

  • Pogled na more

Instalacija

  • Elektricitet
  • Septička jama
  • Voda

Karakteristike

  • Balkon

Galerija

Podaci

Lokacija Povljana
Kategorija Apartman za odmor
Kupaonice 2025
Stambeni prostor ili površina okućnice 60.24 m²
Površina vrta
Ukupno soba 2
Broj spavaćih soba 2
Broj kupaonica 2

Karta

Prodajna cijena:

plus 3% provizije za posredovanje, javnobilježničke i zemljišnoknjižne troškove

Kontaktirajte prodajno osoblje

Bettina Lautenschlager

Zatražite više informacija

Prodajna cijena:

€ 222’200.-