PAG, PRODAJA APARTMANA 75,47 M2, POGLED, NOVO, LOKACIJA!!!

Opis

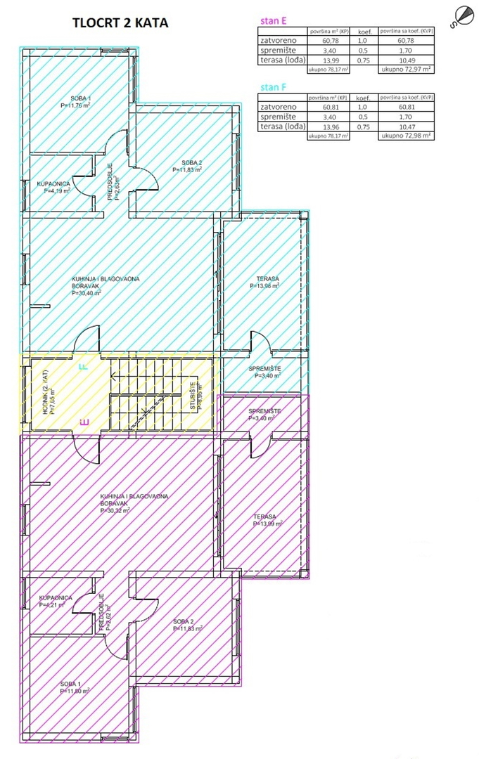
Pag, prodaje se dvosobni apartman od 75,47 m2 na drugom katu stambenog objekta izgrađenog 2022 godine, kompletno novonmješten, kvalitetna gradnja. . Sastoji se od: dvije spavaće sobe, dnevnog boravka + kuhinja + blagovaona, kupaonice i terase. . IZ APARTMANA SE PRUŽA POGLED NA MORE!!! . Nalazi se na dobroj lokaciji 200 m udaljen od mora, 460 m od centra Paga, blizina mosta, trgovine te svih sadržaja potrebnih za ugodan odmor!!! . Posjeduje parkirno mjesto i spremište. . Dokumentacija uredna. . Gledati tlocrt apartman oznake E.

Svojstva

  • Pogled na more

Instalacija

  • Elektricitet
  • Internet
  • Septička jama
  • Telefon
  • Voda

Karakteristike

  • Smočnica
  • Terasa

Galerija

Podaci

Lokacija Pag
Kategorija Apartman za odmor
Kupaonice 2022
Stambeni prostor ili površina okućnice 75.47 m²
Površina vrta
Ukupno soba 2
Broj spavaćih soba 2
Broj kupaonica 2

Karta

Prodajna cijena:

plus 3% provizije za posredovanje, javnobilježničke i zemljišnoknjižne troškove

Kontaktirajte prodajno osoblje

Bettina Lautenschlager

Zatražite više informacija

Prodajna cijena:

€ 295’387.-

Kontaktiere uns

Weitere Informationen zu dieser Immobilie anfragen​