ZADAR – DIKLO, PRODAJA STANA 126,62 M2, KROVNA TERASA, BAZEN, POGLED, NOVO!!!

Opis

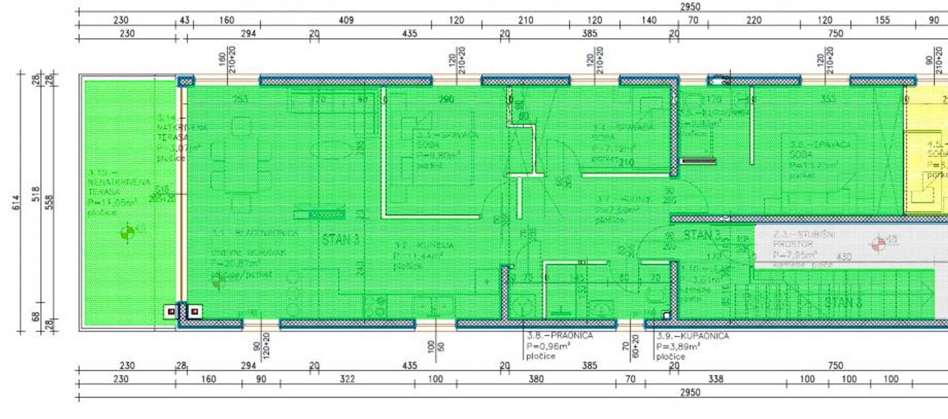
Zadar – Diklo, prodaje se trosobni stan od 126,62 m2 na drugom katu stambenog objekta izgrađenog 2021 godine sa ukupno četiri stana, kvalitetna gradnja. . Sastoji se od: tri spavaće sobe, dnevni boravak + kuhinja + blagovaona, hodnika, servisne sobe, dvije kupaone i ntkrivene terase. . IZ APARTMANA SE PRUŽA PREDIVAN OTVOREN POGLED NA MORE!!! . Nalazi se na izvrsnoj lokaciji 45 m udaljen od mora i plaže, blizina trgovine, restorana, pekare, kafića te svih ostalih sadržaja potrebnih za ugodan odmor i život. . Posjeduje parkirno mjesto, krovnu terasu sa bazenom i spremište. . Dokumentacija uredna.

Svojstva

  • Pogled na more

Instalacija

  • Elektricitet
  • Internet
  • Septička jama
  • Telefon
  • Voda

Karakteristike

  • Smočnica
  • Terasa

Galerija

Podaci

Lokacija Diklo
Kategorija Apartman
Kupaonice 2021
Stambeni prostor ili površina okućnice 126.62 m²
Površina vrta
Ukupno soba 3
Broj spavaćih soba 3
Broj kupaonica 3

Karta

Prodajna cijena:

plus 3% provizije za posredovanje, javnobilježničke i zemljišnoknjižne troškove

Kontaktirajte prodajno osoblje

Bettina Lautenschlager

Zatražite više informacija

Prodajna cijena:

€ 650’000.-