ZADAR – DRAČEVAC NINSKI, KUĆA 212.90 M2, PRODAJA, BAZEN, NOVO!!!

Opis

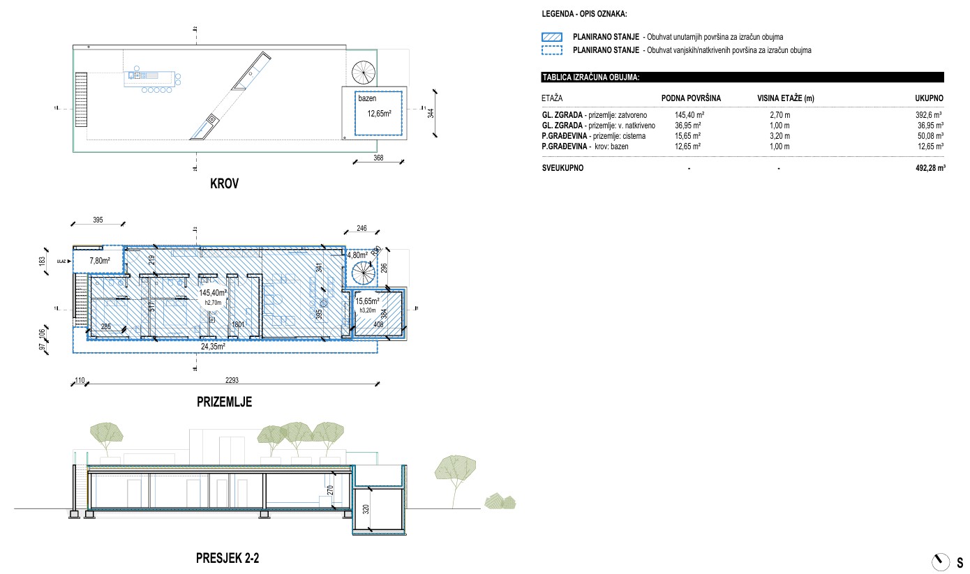
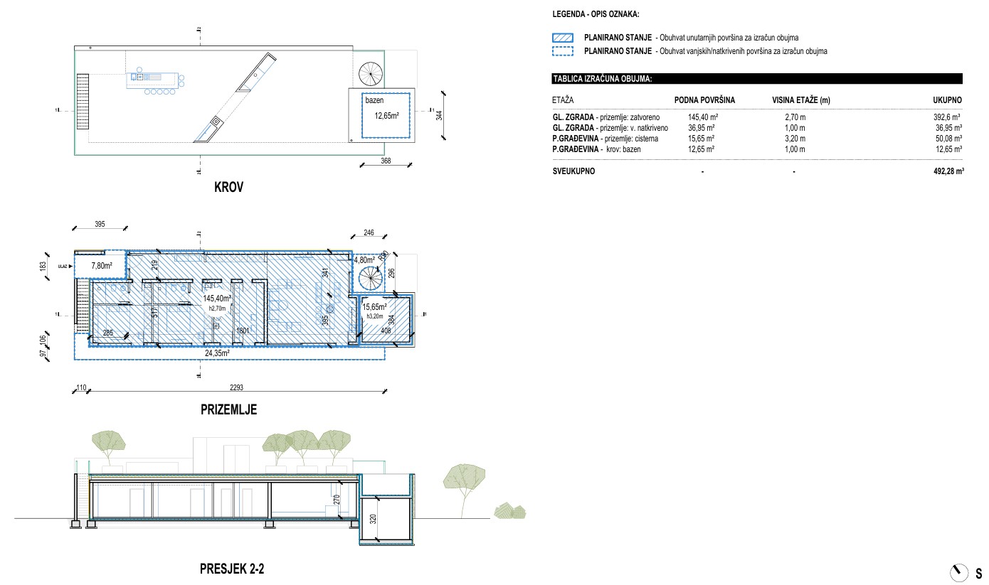
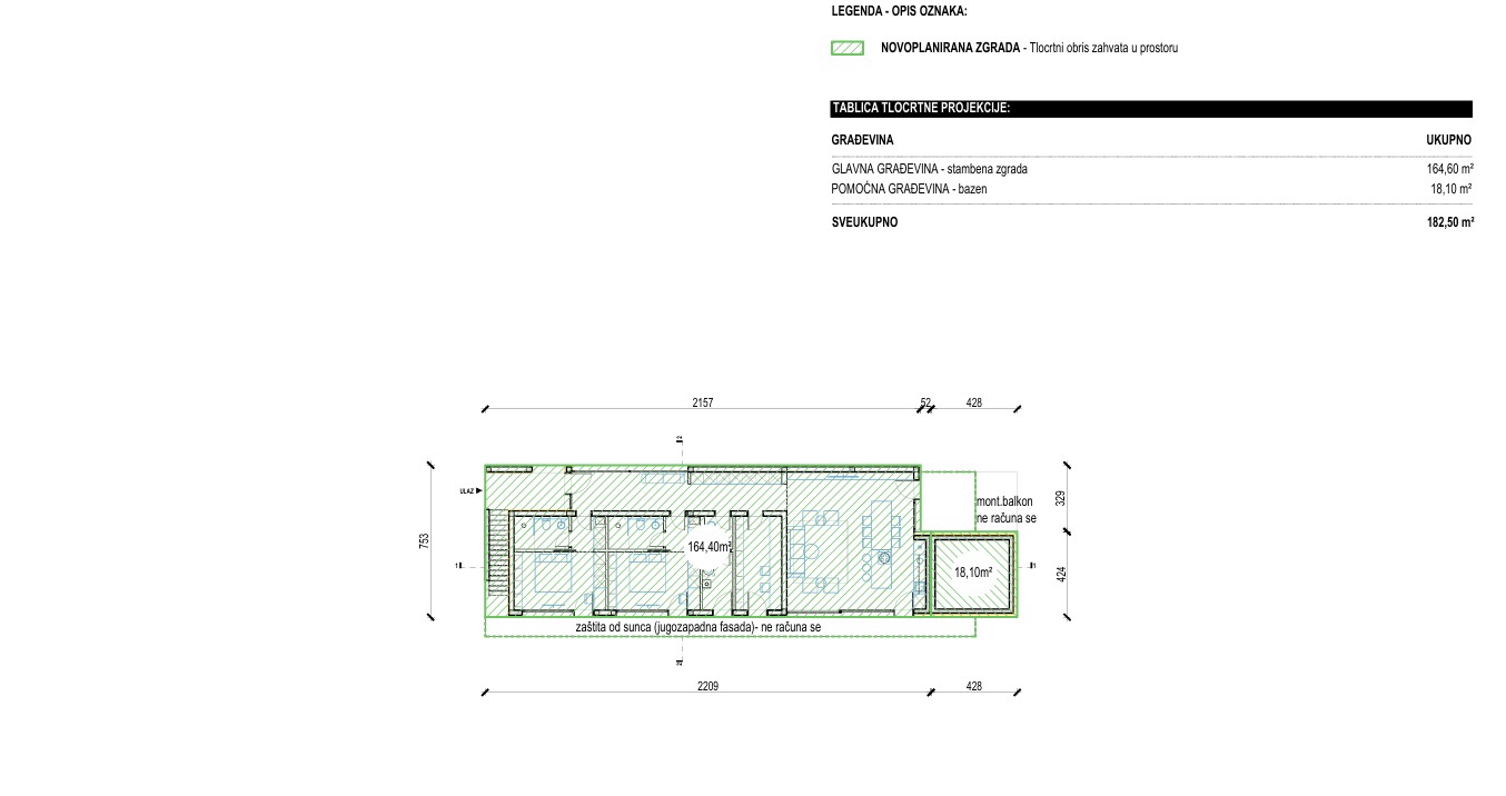
Zadar – Dračevac Ninski, prodaje se samostojeća kuća prizemnica od 212,90 netto stambene površine i 293 m2 okućnice u izgradnji na zemljištu od 531 m2. Visokokvalitetna gradnja. Planirano useljenje kraj/2026. Sastoji se od: tri spavaće sobe, dnevnog boravka + kuhinja + blagovaona, hodnika, tri kupaonice i terase. Nalazi se na mirnoj lokaciji, blizina svih potrebnih sadržaja za ugodan i miran odmor te život!!! Posjeduje dva parkirna mjesta i krovnu terasu na kojoj je bazen. Dokumentacija uredna.

Svojstva

Instalacija

  • Elektricitet
  • Septička jama
  • Voda

Karakteristike

  • Balkon
  • Bazen
  • Loggia

Galerija

Podaci

Lokacija Dračevac Ninski
Kategorija Kuća
Kupaonice 2026
Stambeni prostor ili površina okućnice 212.9 m²
Površina vrta 531.0 m²
Ukupno soba 3
Broj spavaćih soba 3
Broj kupaonica 3

Karta

Prodajna cijena:

plus 3% provizije za posredovanje, javnobilježničke i zemljišnoknjižne troškove

Kontaktirajte prodajno osoblje

Bettina Lautenschlager

Zatražite više informacija

Prodajna cijena:

€ 480’000.-