ZADAR – MELADA, PRODAJA KUĆE 253,42 M2, ODLIČNA LOKACIJA!!!

Opis

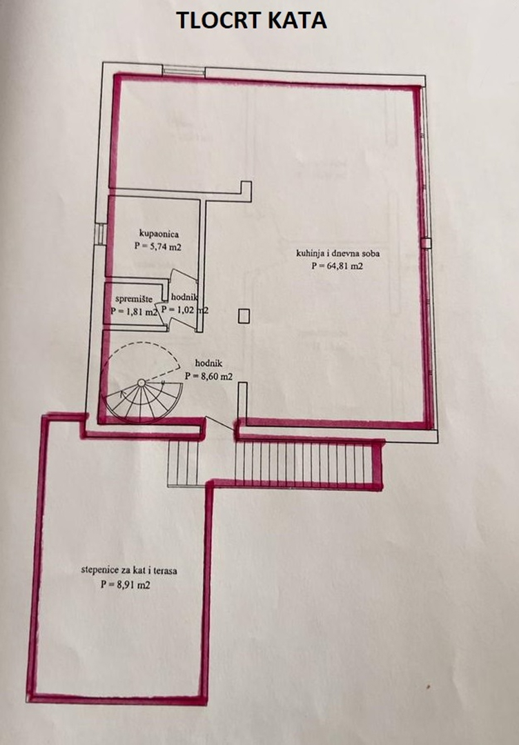
Zadar – Melada, prodaje se samostojeća kuća dvokatnica od 253,42 m2 stambene površine i 386 m2 okućnice izgrađena prije 1968 godine. . Sastoji se od prizemlja, kata i potkrovlja, tri odvojena stana. Prizemlje: Stan 1: jedna spavaća soba, dnevni boravak + kuhinja + blagovaona, hodnik i kupaonica. Stan 2: jedna spavaća soba, dnevni boravak + kuhinja + blagovaona, hodnik i kupaonica. Konoba. Kat + potkrovlje: dvije spavaće sobe, radna soba, dnevni boravak + kuhinja + blagovaona, hodnik, dvije kupaonice i terasa. . Nalazi se na odličnoj lokaciji 650 m udaljena od mora i plaže, blizina trgovine, kafića, pekare, pošte, ljekarne, škole, vrtića, ribarnice te svih ostalih sadržaja potrebnih za ugodan život i odmor!!! . Posjeduje više parkirnih mjesta. . Grijanje centralno podno na struju. . Dokumentacija uredna, stanovi su etažirani.

Svojstva

Instalacija

  • Elektricitet
  • Internet
  • Odvodni kanal
  • Telefon
  • Voda

Karakteristike

  • Konoba u zatvorenom/na otvorenom
  • Terasa
  • Vrt

Galerija

Podaci

Lokacija Melada
Kategorija Kuća
Kupaonice 1968
Stambeni prostor ili površina okućnice 253.42 m²
Površina vrta 386.0 m²
Ukupno soba 8
Broj spavaćih soba 5
Broj kupaonica 5

Karta

Prodajna cijena:

plus 3% provizije za posredovanje, javnobilježničke i zemljišnoknjižne troškove

Kontaktirajte prodajno osoblje

Bettina Lautenschlager

Zatražite više informacija

Prodajna cijena:

€ 550’000.-

Kontaktiere uns

Weitere Informationen zu dieser Immobilie anfragen​