ZADAR – PRIVLAKA, APARTMAN 80,75 M2, PRODAJA, POGLED, NOVO, IZVRSNA LOKACIJA!!!

Opis

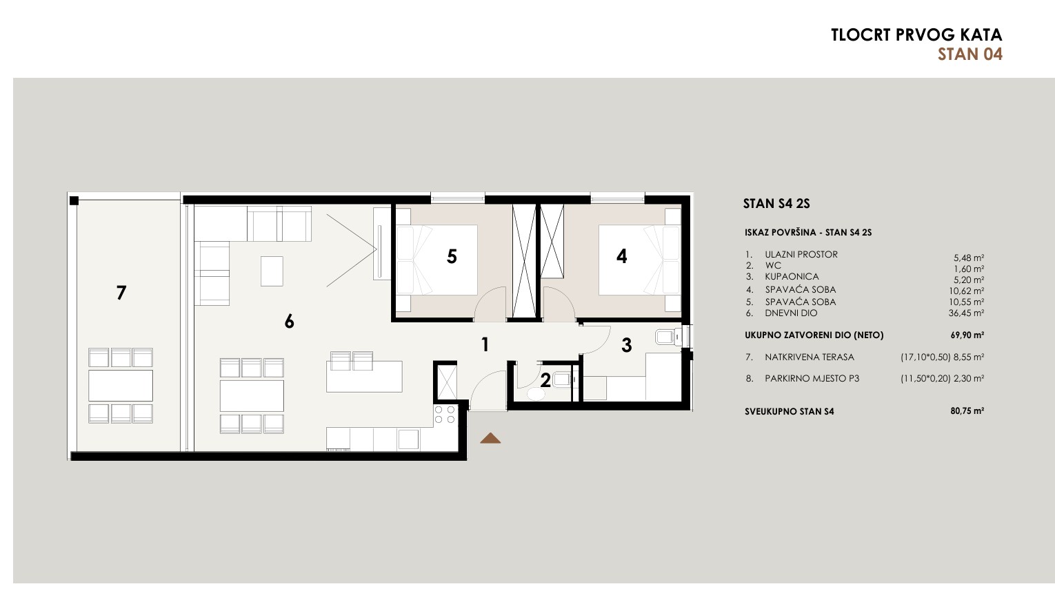
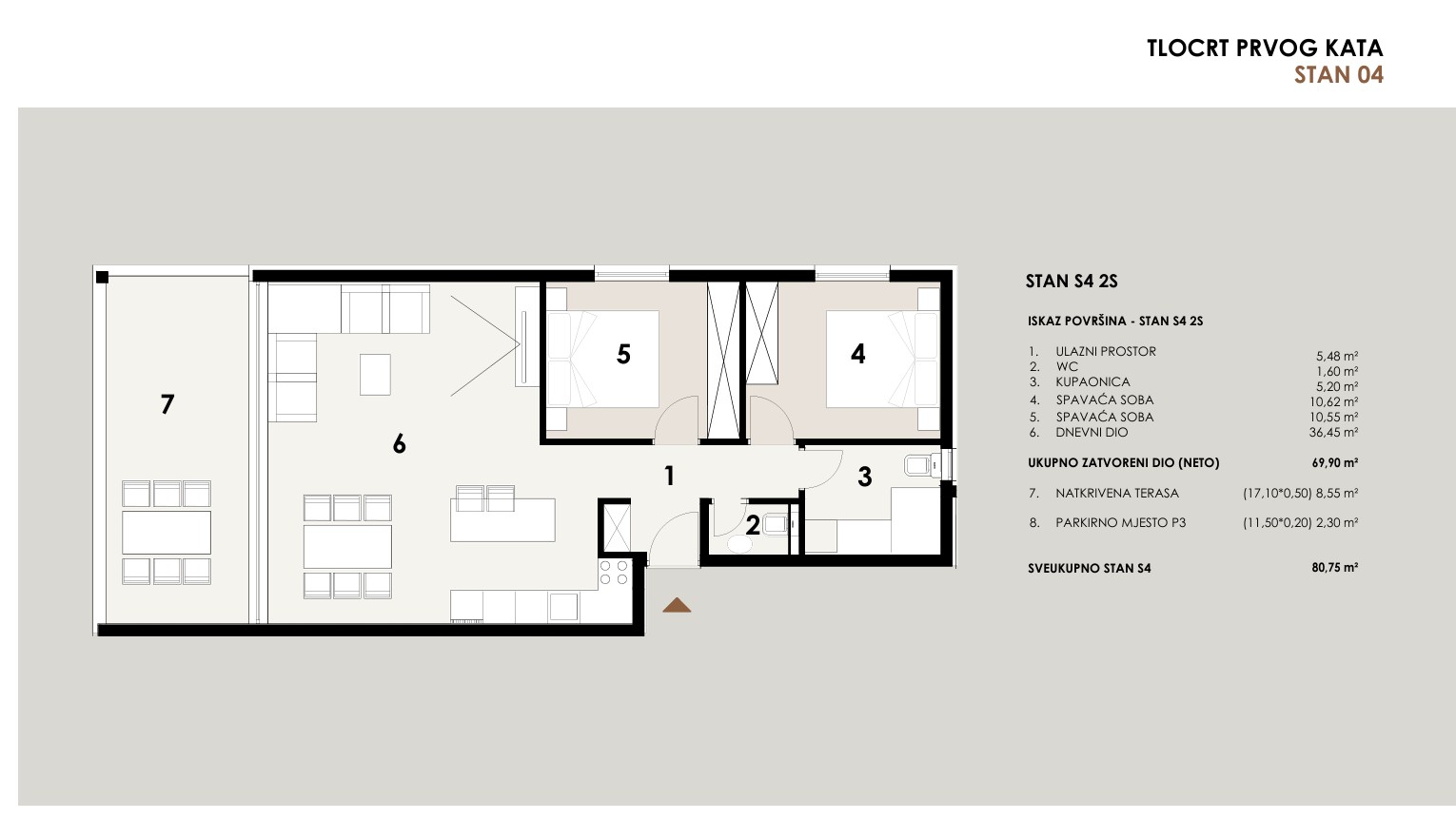
Zadar – Privlaka, prodaje se dvosobni apartman od 80,75 m2 na prvom katu stambenog objekta sa ukupno osam apartmana u izgradnji, planirano useljenje ljeto/2026. godine. Visokokvalitetna gradnja, Smart Inverter klima uređaji, podno grijanje (kupaonica, dnevni boravak, blagovaonica), vrhunska unutarnja stolarija, PVC stolarija s ALU roletama na elektro pogon, troslojno staklo s Low-e premazom, komarnici, podovi parket i keramika I. klase, itd… Sastoji se od: dvije spavaće sobe, dnevnog boravka + kuhinja + blagovaona, predsoblja, wc-a, kupaonice i terase. IZ APARTMANA SE PRUŽA PREDIVAN POGLED NA MORE!!! Nalazi se na izvrsnoj lokaciji 60 m udaljen od mora i pješčane plaže, blizina kafića, restorana, trgovine te svih ostalih sadržaja potrebnih za ugodan i miran odmor!!! Posjeduje parkirno mjesto. Dokumentacija uredna. Tlocrt gledati stan oznake S4. Apartmani glase na firmu tako da kupac ne plaća porez na nekretnine.

Svojstva

  • Pogled na more

Instalacija

  • Elektricitet
  • Septička jama
  • Voda

Karakteristike

  • Balkon

Galerija

Podaci

Lokacija Privlaka
Kategorija Apartman za odmor
Kupaonice 2026
Stambeni prostor ili površina okućnice 80.75 m²
Površina vrta
Ukupno soba 2
Broj spavaćih soba 2
Broj kupaonica 2

Karta

Prodajna cijena:

plus 3% provizije za posredovanje, javnobilježničke i zemljišnoknjižne troškove

Kontaktirajte prodajno osoblje

Bettina Lautenschlager

Zatražite više informacija

Prodajna cijena:

€ 325’000.-

Kontaktiere uns

Weitere Informationen zu dieser Immobilie anfragen​