ZADAR – RTINA, GRAĐ.ZEMLJIŠTE 3162 M2 + GRAĐ.DOZVOLA ZA 6 VILA, PRODAJA, POGLED!!!

Opis

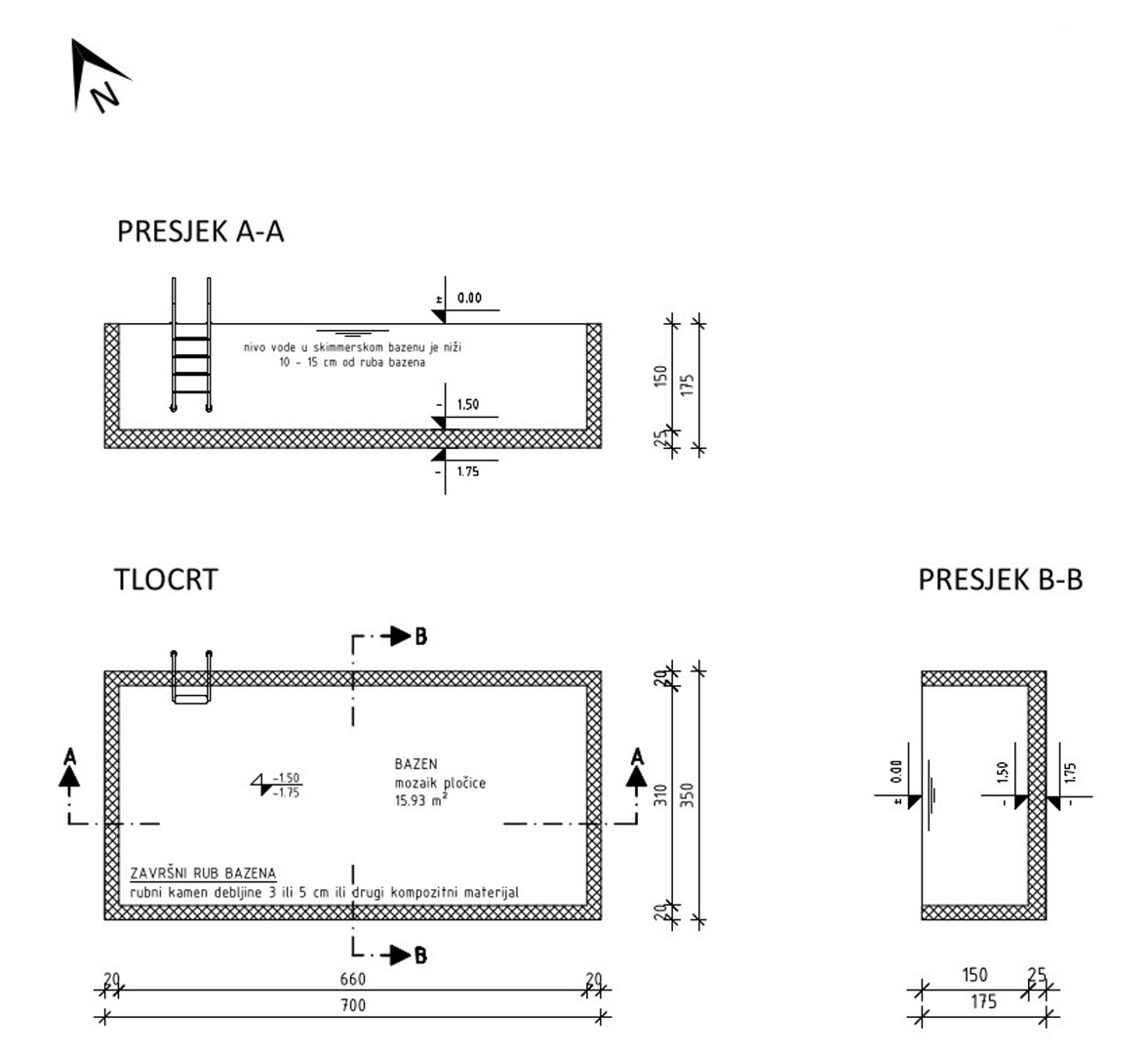
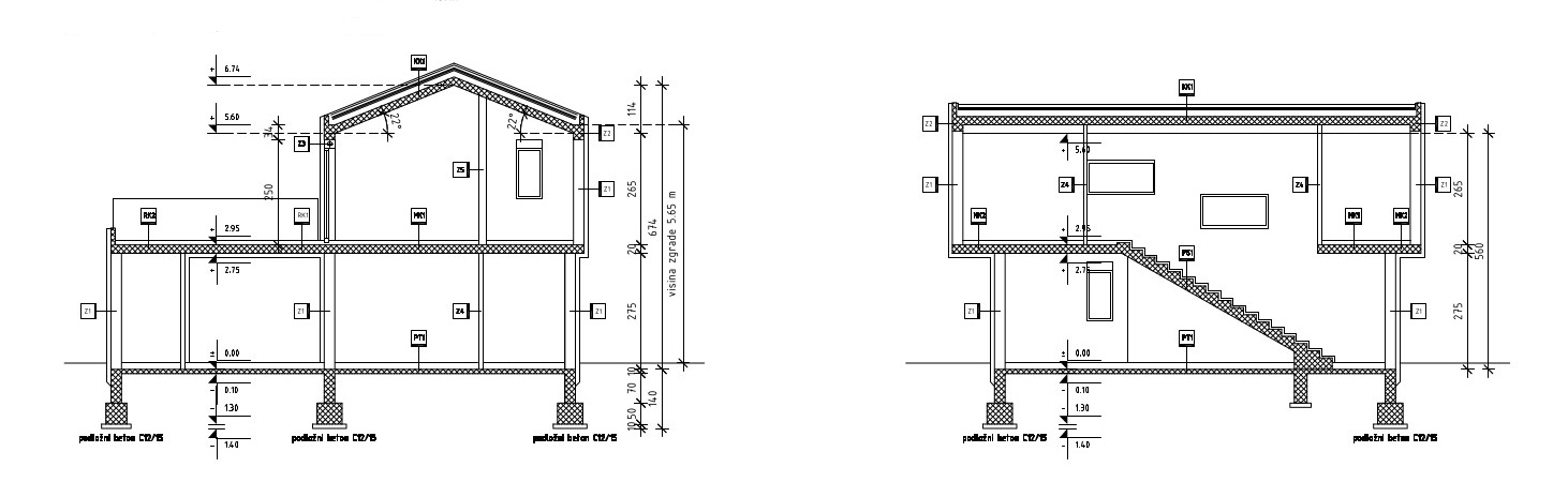
Zadar – Rtina, prodaje se građevinsko zemljište od 3162 m2 ukupne površine. . Zemljište je pravilnog oblika dimenzija cca. 46m x 70m, sada je parcelirano na 6 parcela svaka cca. 20m x 20m sa prilazni putom u sredini, struja i voda pored. Posjeduje ishodovanu građevinsku dozvolu za šest vila sa bazenom, plaćeni komunalni doprinosi. . SA ZEMLJIŠTA SE PRUŽA POGLED NA MORE!!! . Nalazi se na dobroj lokaciji 800 m udaljen od mora i plaže, blizina plaže Plemići te svih sadržaja potrebnih za ugodan i miran odmor!! . Dokumentacija uredna.

Svojstva

  • Pogled na more

Instalacija

Karakteristike

Galerija

Podaci

Lokacija Rtina
Kategorija Zemljište
Kupaonice
Stambeni prostor ili površina okućnice 3162.0 m²
Površina vrta
Ukupno soba
Broj spavaćih soba
Broj kupaonica

Karta

Prodajna cijena:

plus 3% provizije za posredovanje, javnobilježničke i zemljišnoknjižne troškove

Kontaktirajte prodajno osoblje

Bettina Lautenschlager

Zatražite više informacija

Prodajna cijena:

€ 995’000.-

Kontaktiere uns

Weitere Informationen zu dieser Immobilie anfragen​