ZADAR – ZATON, GRAĐ.ZEMLJIŠTE 1221 M2, PRODAJA, LOKACIJA, IDEJNO RIJEŠENJE ZA 9 APARTMANA!!

Opis

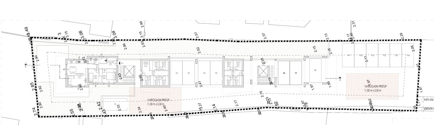
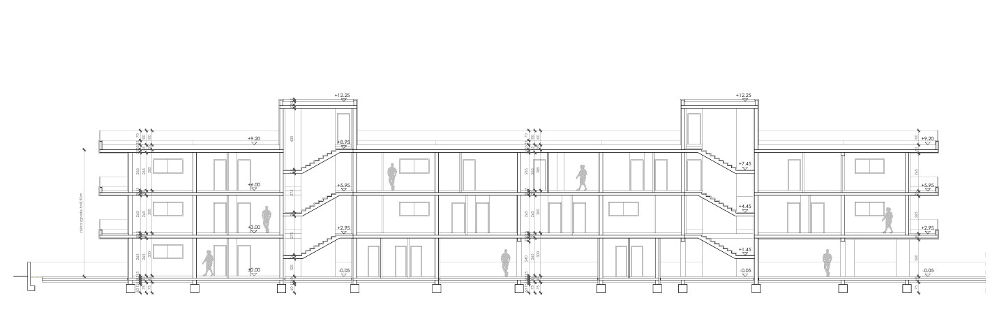
Zadar – Zaton, prodaje se građevinsko zemljište od 1221 m2. Zemljište je pravilnog oblika dimenzija cca. 17m x 80m, prilaznu put upisan širine 3m, kompletna infrastruktura pored. Zemljište posjeduje idejno riješenje za objekt sa devet apartmana. SA ZEMLJIŠTA SE PRUŽA POGLED NA MORE!!! Nalazi se na odličnoj lokaciji 65 m udaljeno od mora i plaže (treći red), blizina restorana, kafića, centra mjesta, kampa te svih ostalih sadržaja za ugodan odmor!!! Dokumentacija uredna.

Svojstva

  • Pogled na more

Instalacija

Karakteristike

Galerija

Podaci

Lokacija Zaton
Kategorija Zemljište
Kupaonice
Stambeni prostor ili površina okućnice 1221.0 m²
Površina vrta
Ukupno soba
Broj spavaćih soba
Broj kupaonica

Karta

Prodajna cijena:

plus 3% provizije za posredovanje, javnobilježničke i zemljišnoknjižne troškove

Kontaktirajte prodajno osoblje

Bettina Lautenschlager

Zatražite više informacija

Prodajna cijena:

€ 488’400.-