ZAGREB – DONJA DUBRAVA (RETKOVEC), PRODAJA STANA 51.01 M2, NOVOGRADNJA, LOKACIJA!!!

Opis

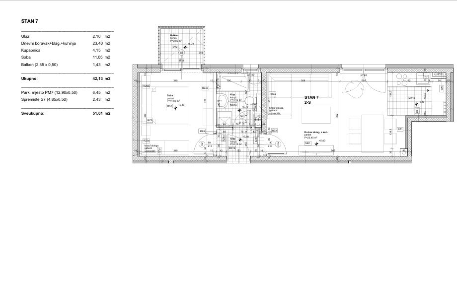
Zagreb – Donja Dubrava (Retkovec), prodaje se dvosobni stan od 51.01 m2 na drugom katu stambene zgrade u izgradnji, planirano useljenje krajen 2026. godine. Stan se sastoji od: jedne spavaće sobe, kuhinje + blagovaone i dnevnog boravka, kupaone, i balkona. Posjeduje vanjsko parkirno mjesto i ostavu. Specifikacija površina: – Ulaz 2,10 m2 – Dnevni boravak + blagovaonica + kuhinja 23,40 m2 – Kupaonica 4,15 m2 – Soba 11,05 m2 – Balkon 1,43 m2 Parkiranje i spremište – Parkirno mjesto PM7 6,45 m2 – Spremište S7 2,43 m2 Obračun Stambena površina 42,13 m2 Parkirno mjesto i spremište 8,88 m2 Sveukupno 51,01 m2 Lokacija je u zoni Čulinečke i Dubrave u blizini Doma zdravlja vrtića osnovnih škola trgovina poput Lidla i Konzuma pekarne i ljekarne te je dobro povezana vlakom tramvajem i autobusom a nalazi se u mirnoj mikrolokaciji s dobrom prometnom povezanošću. Dokumentacija uredna

Svojstva

Instalacija

  • Elektricitet
  • Odvodni kanal
  • Telefon
  • Voda

Karakteristike

  • Balkon
  • PVC stolarija
  • Smočnica

Galerija

Podaci

Lokacija Retkovec
Kategorija Apartman
Kupaonice 2025
Stambeni prostor ili površina okućnice 51.01 m²
Površina vrta
Ukupno soba 2
Broj spavaćih soba 1
Broj kupaonica 1

Karta

Prodajna cijena:

plus 3% provizije za posredovanje, javnobilježničke i zemljišnoknjižne troškove

Kontaktirajte prodajno osoblje

Bettina Lautenschlager

Zatražite više informacija

Prodajna cijena:

€ 204’040.-