ZAGREB – DONJA DUBRAVA (RETKOVEC), PRODAJA STANA 79.04 M2, NOVOGRADNJA, LOKACIJA!!!

Opis

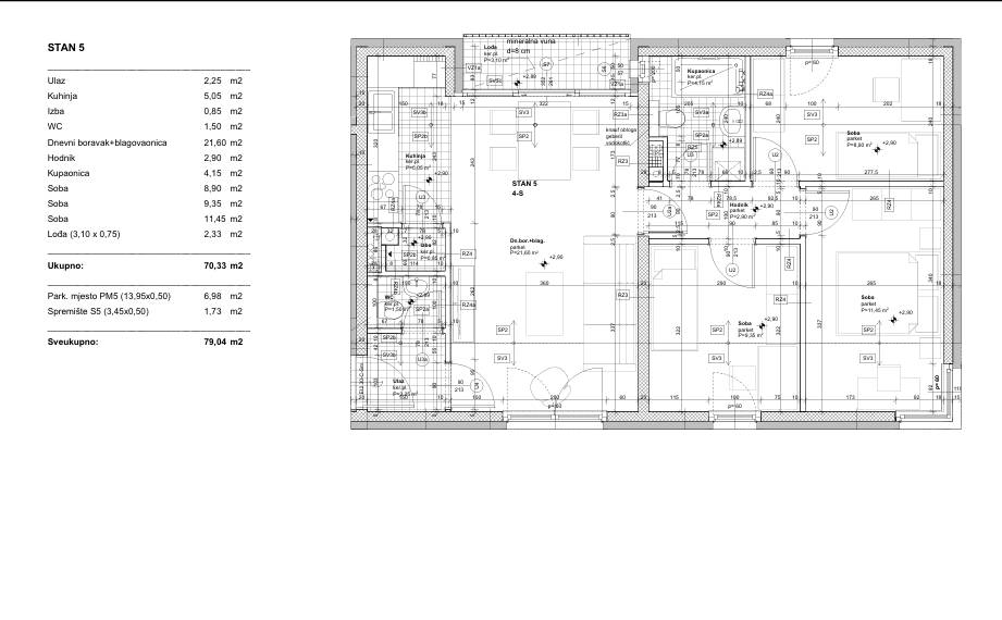
Zagreb – Donja Dubrava (Retkovec), prodaje se dvosobni stan od 79.04 m2 na prvom katu stambene zgrade u izgradnji, planirano useljenje krajen 2026. godine. Stan se sastoji od: tri spavaće sobe, kuhinje + blagovaone i dnevnog boravka, ostave, kupaone wc-a, i loggie. Posjeduje vanjsko parkirno mjesto i ostavu. Specifikacija površina: – Ulaz 2,25 m2 – Kuhinja 5,05 m2 – Ostava 0,85 m2 – WC 1,50 m2 – Dnevni boravak + blagovaonica 21,60 m2 – Hodnik 2,90 m2 – Kupaonica 4,15 m2 – Soba 8,90 m2 – Soba 9,35 m2 – Soba 11,45 m2 – Lođa 2,33 m2 Parkirno mjesto PM5 6,98 m2 Spremište S5 1,73 m2 Stambena površina 70,33 m2 Sveukupno 79,04 m2 Lokacija je u zoni Čulinečke i Dubrave u blizini Doma zdravlja vrtića osnovnih škola trgovina poput Lidla i Konzuma pekarne i ljekarne te je dobro povezana vlakom tramvajem i autobusom a nalazi se u mirnoj mikrolokaciji s dobrom prometnom povezanošću. Dokumentacija uredna

Svojstva

Instalacija

  • Elektricitet
  • Odvodni kanal
  • Telefon
  • Voda

Karakteristike

  • Balkon
  • PVC stolarija
  • Smočnica

Galerija

Podaci

Lokacija Retkovec
Kategorija Apartman
Kupaonice 2025
Stambeni prostor ili površina okućnice 79.04 m²
Površina vrta
Ukupno soba 4
Broj spavaćih soba 3
Broj kupaonica 3

Karta

Prodajna cijena:

plus 3% provizije za posredovanje, javnobilježničke i zemljišnoknjižne troškove

Kontaktirajte prodajno osoblje

Bettina Lautenschlager

Zatražite više informacija

Prodajna cijena:

€ 292’448.-