ZAGREB – DONJA DUBRAVA (RETKOVEC), PRODAJA STANA 98 M2, NOVOGRADNJA, TERASA 58M2, LOKACIJA!!!

Opis

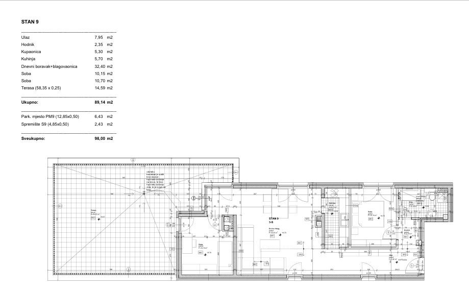
Zagreb – Donja Dubrava (Retkovec), prodaje se dvosobni stan od 98 m2 na trećem katu stambene zgrade u izgradnji, planirano useljenje krajen 2026. godine. Stan se sastoji od: tri spavaće sobe, kuhinje + blagovaone i dnevnog boravka, ostave, kupaone wc-a, i velike terease od 58 m2 . Posjeduje vanjsko parkirno mjesto i ostavu. Specifikacija površina: Ulaz 7,95 m2 Hodnik 2,35 m2 Kupaonica 5,30 m2 Kuhinja 5,70 m2 Dnevni boravak + blagovaonica 32,40 m2 Soba 10,15 m2 Soba 10,70 m2 Terasa (58,35 × 0,25) → 14,59 m2 Ukupno 89,14 m2 Parkirno mjesto PM9 (12,85 × 0,50) → 6,43 m2 Spremište S9 (4,85 × 0,50) → 2,43 m2 Sveukupno 98,00 m2 Lokacija je u zoni Čulinečke i Dubrave u blizini Doma zdravlja vrtića osnovnih škola trgovina poput Lidla i Konzuma pekarne i ljekarne te je dobro povezana vlakom tramvajem i autobusom a nalazi se u mirnoj mikrolokaciji s dobrom prometnom povezanošću. Dokumentacija uredna

Svojstva

Instalacija

  • Elektricitet
  • Odvodni kanal
  • Telefon
  • Voda

Karakteristike

  • Balkon
  • PVC stolarija
  • Smočnica

Galerija

Podaci

Lokacija Retkovec
Kategorija Apartman
Kupaonice 2025
Stambeni prostor ili površina okućnice 98.0 m²
Površina vrta
Ukupno soba 3
Broj spavaćih soba 2
Broj kupaonica 2

Karta

Prodajna cijena:

plus 3% provizije za posredovanje, javnobilježničke i zemljišnoknjižne troškove

Kontaktirajte prodajno osoblje

Bettina Lautenschlager

Zatražite više informacija

Prodajna cijena:

€ 352’800.-

Kontaktiere uns

Weitere Informationen zu dieser Immobilie anfragen​