ZAGREB – SESVETE (GAJIŠĆE), NOVOGRADNJA 94,15 M2, LOKACIJA!!!

Opis

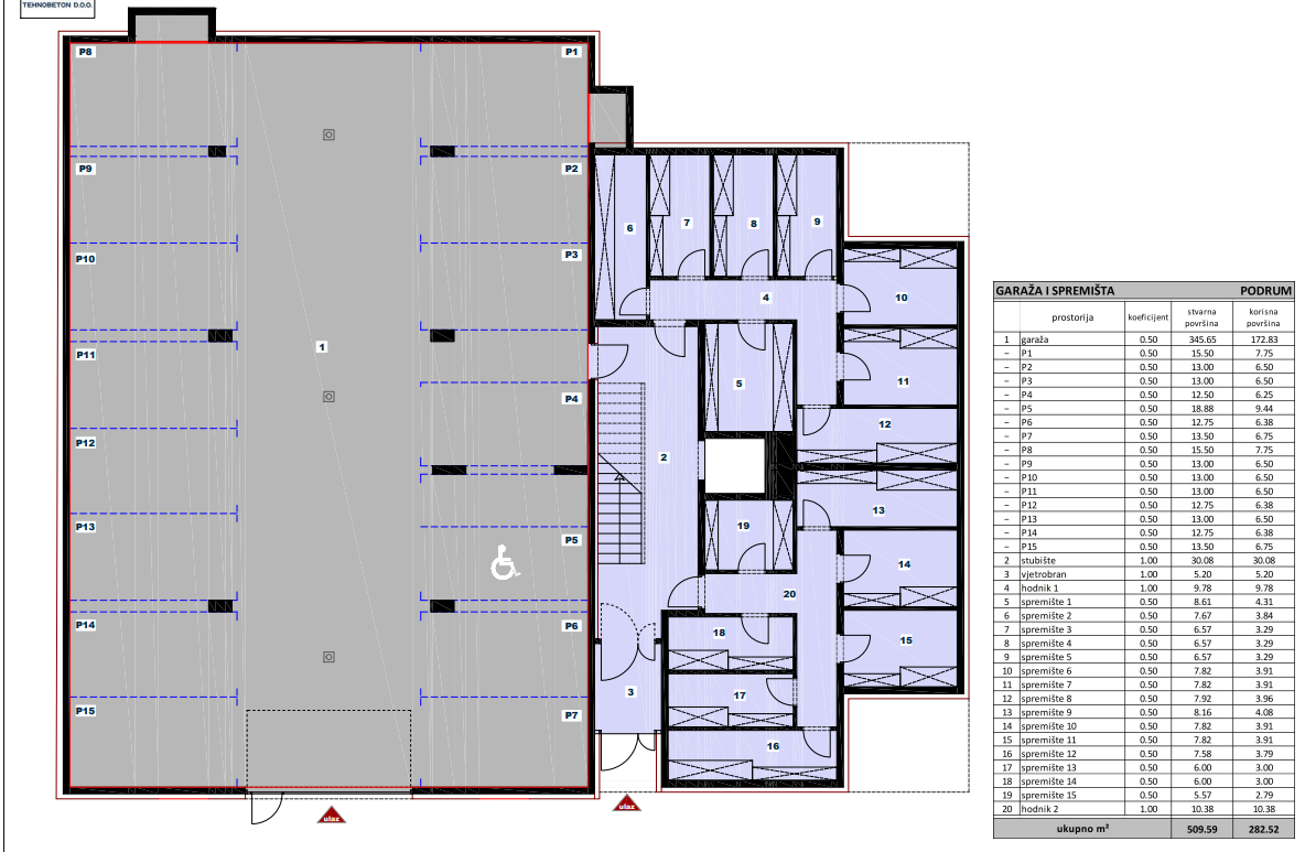
Zagreb – Sesvete (Gajišće), prodaje se stan od 94,15 m2 na prvom katu stambene zgrade u izgradnji, planirani rok useljenja je kraj 2026. godine. Sastoji se od: tri spavaće sobe, kuhinje s blagovaonom i dnevnim boravkom, kupaone, ostave, i lođe. Zgrada ima lift. U cijenu i kvadraturu nisu uračunati garažno mjesto i spremište u podrumu zgrade; postoji mogućnost odabira istih. Nalazi se na izvrsnoj lokaciji 700m od centra grada Sesveta, u mirnom okruženju, tik uz šumu. Planski je osmišljeno stoga je sve potrebno nadohvat ruke, što se naročito odnosi na osnovnu i srednju školu, trgovačke centre (Kaufland, Konzum…), Hrvatsku poštu, Dom zdravlja, banke, ljekarne… Dokumentacija uredna. Stan je oznake S8.

Svojstva

Instalacija

  • Elektricitet
  • Odvodni kanal
  • Voda

Karakteristike

Galerija

Podaci

Lokacija Gajišće
Kategorija Apartman
Kupaonice 2026
Stambeni prostor ili površina okućnice 94.15 m²
Površina vrta
Ukupno soba 4
Broj spavaćih soba 3
Broj kupaonica 3

Karta

Prodajna cijena:

plus 3% provizije za posredovanje, javnobilježničke i zemljišnoknjižne troškove

Kontaktirajte prodajno osoblje

Bettina Lautenschlager

Zatražite više informacija

Prodajna cijena:

€ 301’280.-