ZAGREB – TREŠNJEVKA, POSLOVNI PROSTOR 106,94 M2, PRODAJA, LOKACIJA, NOVO!!!

Opis

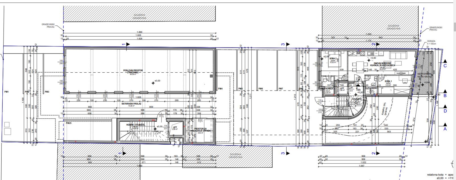
Zagreb – Trešnjevka, prodaje se poslovni prostor od 94,38 m2 u prizemlju poslovno stambene zgrade u izgradnji, planirano useljenje 03/2026 godine. Sastoji se od jedne velike prostorije, idealno za trgovine, ugostiteljstvo, uredi, itd… Nalazi se na odličnoj lokaciji, uz glavnu cestu, blizina trgovine, kafića, restorana, ljekarne, itd… Posjeduje četiri parkirna mjesta. Dokumentacija uredna.

Svojstva

Instalacija

  • Elektricitet
  • gas
  • Odvodni kanal
  • Voda

Karakteristike

Galerija

Podaci

Lokacija Trešnjevka
Kategorija Komercijalni
Kupaonice 2025
Stambeni prostor ili površina okućnice 106.94 m²
Površina vrta
Ukupno soba
Broj spavaćih soba
Broj kupaonica

Karta

Prodajna cijena:

plus 3% provizije za posredovanje, javnobilježničke i zemljišnoknjižne troškove

Kontaktirajte prodajno osoblje

Bettina Lautenschlager

Zatražite više informacija

Prodajna cijena:

€ 641’640.-