ZAGREB – TREŠNJEVKA, STAN 83,61 M2, PRODAJA, LOKACIJA, NOVO!!!

Opis

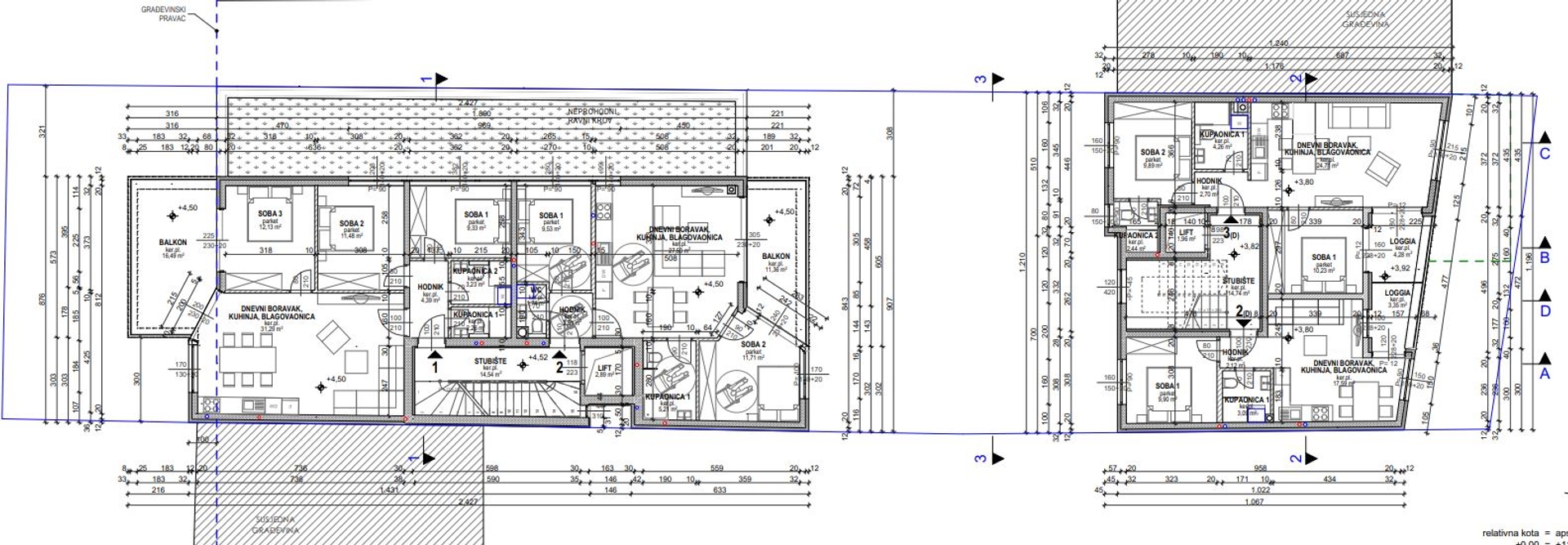
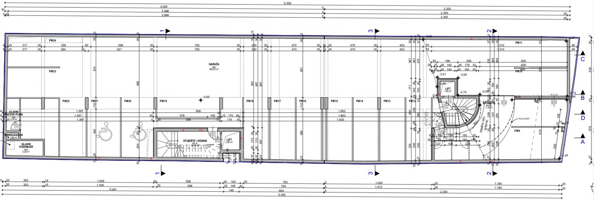
Zagreb – Trešnjevka, prodaje se četverosobni stan od 83,61 m2 na prvom katu stambene zgrade u izgradnji, planirano useljenje 03/2026 godine. Sastoji se od: tri spavaće sobe, dnevnog boravka + kuhinja + blagovaona, hodnika, dvije kupaonice i balkon. Nalazi se na odličnoj lokaciji, blizina trgovine, kafića, restorana, ljekarne, crkve te svih ostalih sadržaja potrebnih za ugodan život! Posjeduje spremište od 2,49 m2. Parkirno mjesto nije uključeno u cijenu te postoji mogućnost odabira vanjskog parkirnog mjesta i garažnog parkirnog mjesta. Dokumentacija uredna. Gledati tlocrt stan oznake 1.

Svojstva

Instalacija

  • Elektricitet
  • gas
  • Odvodni kanal
  • Voda

Karakteristike

  • Balkon
  • Dizalo

Galerija

Podaci

Lokacija Trešnjevka
Kategorija Apartman
Kupaonice 2025
Stambeni prostor ili površina okućnice 83.61 m²
Površina vrta
Ukupno soba 3
Broj spavaćih soba 3
Broj kupaonica 3

Karta

Prodajna cijena:

plus 3% provizije za posredovanje, javnobilježničke i zemljišnoknjižne troškove

Kontaktirajte prodajno osoblje

Bettina Lautenschlager

Zatražite više informacija

Prodajna cijena:

€ 501’660.-