ZAGREB – TRNJE, PRODAJE SE DVOSOBNI STAN OD 38M2, POTPUNO RENOVIRAN, LOKACIJA!!!

Opis

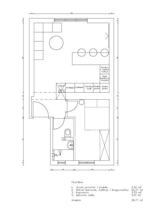
Zagreb – Trnje, prodaje se dvosobni stan od 38 m2 na prvom katu stambene zgrade izgrađene 1939. godine te u potpunosti adaptiran 2026. godine. Sastoji se od jedne spavaće sobe, kuhinje s blagovaonicom i dnevnim boravkom te kupaonice. Stan je kompletno adaptiran; promijenjene su instalacije u cijelom stanu (struja i voda), postavljena su nova protuprovalna vrata, dvoslojna PVC stolarija s komarnicima, kao i sva nova sobna vrata. Postavljen je višeslojni parket sa širokim bijelim lajsnama, novi radijatori i klima-uređaj, nova kupaonica i sanitarije, čime je zamijenjen doslovno svaki zamjenjivi segment u stanu. Idejno rješenje za uređenje prikazano je na slikama. Planirani završetak radova: 05.05.2026. Moguć je izbor podnih obloga i sanitarija ukoliko se kupnja odvije unutar roka adaptacije. Cijena stana prije dovršetka adaptacije iznosi 175.000,00 EUR (vrijedi isključivo za gotovinsko plaćanje). Cijena stana nakon adaptacije iznosit će 185.000,00 EUR. Lokacija stana je izvanredna, u neposrednoj blizini svih ključnih sadržaja. Dokumentacija uredna.

Svojstva

Instalacija

  • Elektricitet
  • gas
  • Internet
  • Odvodni kanal
  • Voda

Karakteristike

Galerija

Podaci

Lokacija Trnje
Kategorija Apartman
Kupaonice 1939
Stambeni prostor ili površina okućnice 38.0 m²
Površina vrta
Ukupno soba 2
Broj spavaćih soba 1
Broj kupaonica 1

Karta

Prodajna cijena:

plus 3% provizije za posredovanje, javnobilježničke i zemljišnoknjižne troškove

Kontaktirajte prodajno osoblje

Bettina Lautenschlager

Zatražite više informacija

Prodajna cijena:

€ 175’000.-