NEUBAU AN DER DUBRAVA AVENUE, WOHNUNG 64,17 M2, ZU VERKAUFEN, LAGE!

Beschreibung

Zagreb – Donja Dubrava, Zweizimmerwohnung mit 64,17 m² zum Verkauf im ersten Stock eines Wohngebäudes mit insgesamt zwanzig Wohnungen im Bau, Baubeginn im Frühjahr 2026 und geplante Fertigstellung im Jahr 2027.
Die
Es besteht aus: zwei Schlafzimmern, Wohnzimmer + Küche + Esszimmer, Flur, Hauswirtschaftsraum, Garderobe, Badezimmer und Balkon.
Die
Es befindet sich in einer großartigen Lage, in der Nähe von Schulen, Kindergärten, Geschäften und allen anderen Einrichtungen, die für ein komfortables Leben notwendig sind!

Möglichkeit zum Kauf eines Garagenstellplatzes zum Preis von 25.000 €.

Das Gebäude verfügt über einen Aufzug.

Dokumentation vollständig.
Die
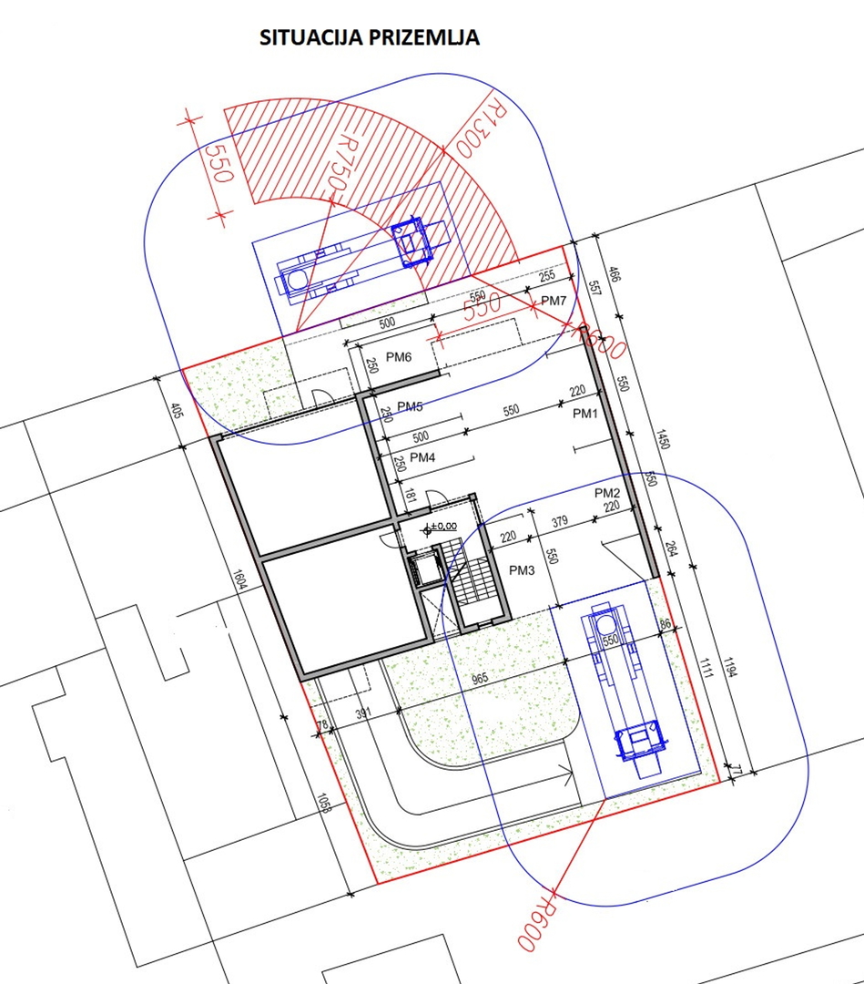
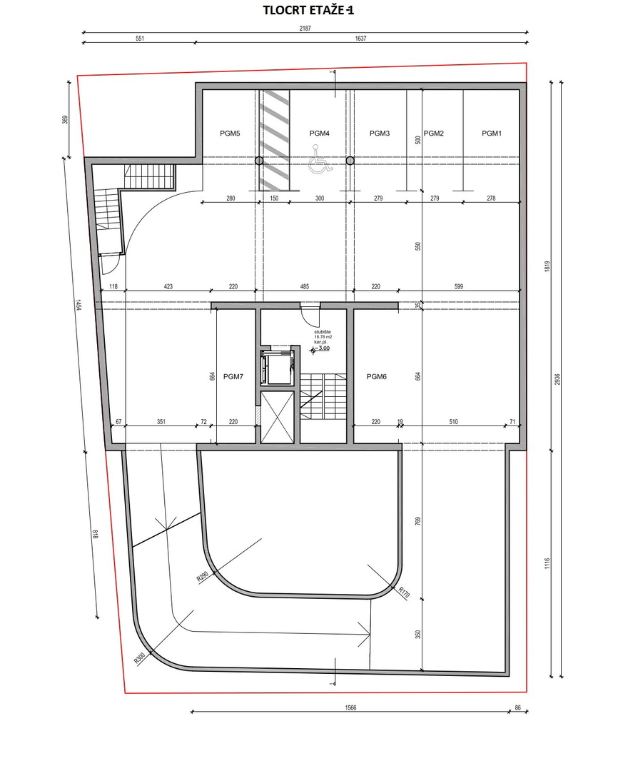
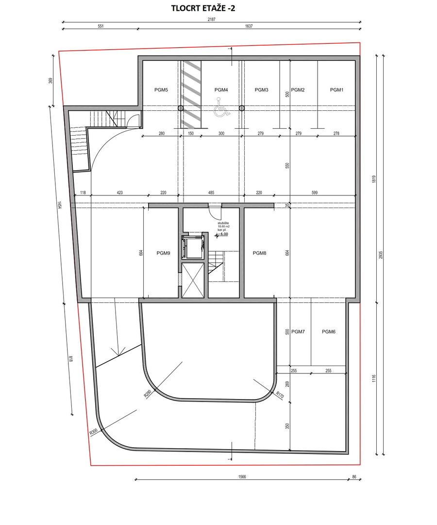
Grundrissansicht der mit A3 gekennzeichneten Wohnung.

Eigenschaften

Installationen

  • Elektrizität
  • Internet
  • Kanalisation
  • Telefon
  • Voda

Merkmale

  • Aufzug
  • Balkon
  • Speisekammer

Galerie

Daten

Ort Donja Dubrava
Kategorie Stadtwohnung
Baujahr 2026
Wohn- bzw. Grundstückfläche 64.17 m²
Umschwung / Gartenfläche
Zimmer Total 3
Anzahl der Schlafzimmer 2
Anzahl Badezimmer 2

Karte

Verkaufspreis:

plus 3 % Maklerprovision, Notar und Grundbuchkosten

Kontaktieren Sie das Verkaufspersonal

Bettina Lautenschläger

Mehr Informationen anfordern

Verkaufspreis:

€ 311’224.-

Kontaktiere uns

Weitere Informationen zu dieser Immobilie anfragen​