PAG – MANDRE, WOHNUNG 76,9 M2, ZU VERKAUFEN, NEU, AUSSICHT, LAGE!!

Beschreibung

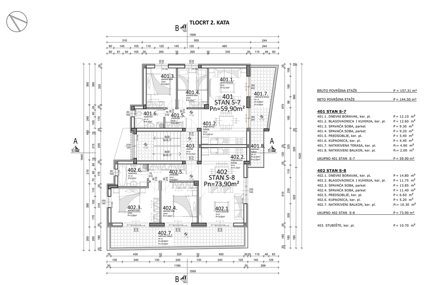
Pag – Mandre, Zweizimmerwohnung mit 76,9 m2 zu verkaufen im zweiten Stock eines im Bau befindlichen Wohngebäudes mit insgesamt acht Wohnungen, hochwertige Bauweise.

Es besteht aus: zwei Schlafzimmern, Wohnzimmer + Küche + Esszimmer, Flur, Badezimmer und Terrasse.

DIE WOHNUNG HAT MEERBLICK!!!

Es befindet sich in einer ausgezeichneten Lage, 350 m vom Meer und Strand entfernt, in der Nähe von Restaurants, Cafés, Geschäften und allen anderen Annehmlichkeiten, die für einen angenehmen und ruhigen Urlaub notwendig sind!!!

Es verfügt über einen Parkplatz.

Möglichkeit der Installation einer Fußbodenheizung (Wasser-Fußbodenheizung auf einem Elektroblock) bis 01.09.2025 gegen Aufpreis.

Dokumentation in Ordnung.

Sehen Sie sich den Grundriss der Wohnung mit der Bezeichnung S8 an.

Oberflächenspezifikation:

– Wohnfläche: 73,90 m2

– Parkplatz: 12,50 m2, Koeffizient = 3 m2.

Eigenschaften

  • Meerblick
  • Pogled na more

Installationen

  • Elektrizität
  • Klärgrube
  • Voda
  • Wasser

Merkmale

  • Balkon

Galerie

Daten

Ort Mandre
Kategorie Stadtwohnung
Baujahr 2025
Wohn- bzw. Grundstückfläche 76.9 m²
Umschwung / Gartenfläche
Zimmer Total 2
Anzahl der Schlafzimmer 2
Anzahl Badezimmer 2

Karte

Verkaufspreis:

plus 3 % Maklerprovision, Notar und Grundbuchkosten

Kontaktieren Sie das Verkaufspersonal

Bettina Lautenschläger

Mehr Informationen anfordern

Verkaufspreis:

€ 335’000.-

Kontaktiere uns

Weitere Informationen zu dieser Immobilie anfragen​