PAG – MANDRE, WOHNUNG 96,66 M2 ZU VERKAUFEN, AUSSICHT, NEU, LAGE!!!

Beschreibung

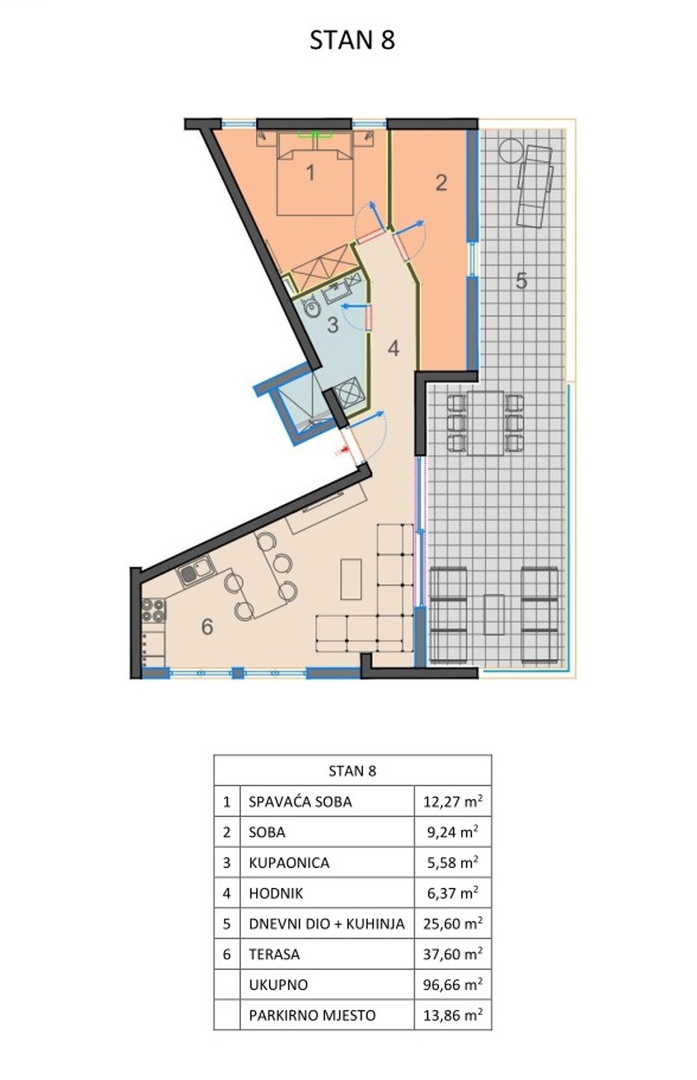
Pag – Mandre, zum Verkauf steht eine Zweizimmerwohnung mit 96,66 m2 Grundriss im dritten Stock eines 2023 erbauten Wohngebäudes.
Hochwertige Konstruktion, Stahlbetonkonstruktion, Wände – Porotherm 25 Profi, Trennwände – Porotherm 10 Profi, Flachdach 15 cm XPS, Außenwände 8 cm EPS, Finish Acrylputz, Keramik, Glaszaun auf der Terrasse auf ALU-Stützen, Innenbereich einflügelige Zimmerei-Holztür aus Natureiche, einbruchhemmende und feuerfeste Eingangstür, äußere PVC-Mehrkammer-Zimmerei, 3 Scheiben, Außenfarbe anthrazit, innen weiß, Rollo-Moskitonetze, elektrisch bewegliche Jalousien an Hubschiebewänden, innenliegende Steinbänke, Anthrazitfarbene Außensitzbänke mit Dichtung, Treppenaufgang mit Naturstein gepflastert, Edelstahlzaun, Zimmerbodenbelag Dreischicht-Eichenparkett, Klimaanlage in allen Räumen und Wohnzimmer, Badboden- und Wandbelag Keramikfliesen 60 cm x 120 cm, Hansgrohe unter -Gips-Duschsystem + Armaturen, Premium-Waschbecken, GEBERIT-Einbauspülkasten + spülrandlose Toilettenschüssel mit Soft-Close-Board, Leiterheizkörper, Rasenfläche mit gepflanzten Zitrusbäumen, gepflasterter Parkplatz, Vorbereitung der Installation für Ladegeräte für Elektrofahrzeuge, Video Gegensprechanlage, TV-Vorbereitung in den Zimmern…
.
Es besteht aus: zwei Schlafzimmern, Wohnzimmer + Küche + Esszimmer, Flur, Badezimmer und Terrasse.
.
DER MEERBLICK WIRD AUS DER WOHNUNG ANGEBOTEN!!!
.
Es befindet sich in einer großartigen Lage, 140 m vom Meer und Strand entfernt, in der Nähe von Cafés, Tavernen, Geschäften und allen Annehmlichkeiten, die Sie für einen angenehmen und ruhigen Urlaub benötigen!!!
.
Es verfügt über einen Parkplatz.
.
Die Dokumentation ist in Ordnung.

Eigenschaften

  • Meerblick
  • Meerblick
  • Pogled na more

Installationen

  • Elektrizität
  • Internet
  • Klärgrube
  • Klärgrube
  • Telefon
  • Voda
  • Wasser
  • Wasser

Merkmale

  • Terrasse

Galerie

Daten

Ort Mandre
Kategorie Ferienwohnung
Baujahr 2023
Wohn- bzw. Grundstückfläche 96.66 m²
Umschwung / Gartenfläche
Zimmer Total 2
Anzahl der Schlafzimmer 2
Anzahl Badezimmer 2

Karte

Verkaufspreis:

plus 3 % Maklerprovision, Notar und Grundbuchkosten

Kontaktieren Sie das Verkaufspersonal

Bettina Lautenschläger

Mehr Informationen anfordern

Verkaufspreis:

€ 338’346.-

Kontaktiere uns

Weitere Informationen zu dieser Immobilie anfragen​