PAG – POVLJANA, WOHNUNG 36,65 M2, ZU VERKAUFEN, AUSSICHT, NEU, LAGE!!!

Beschreibung

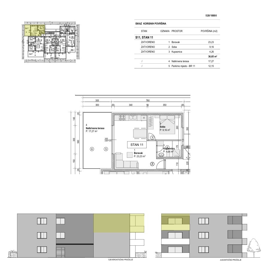
Pag – Povljana, Ein-Zimmer-Wohnung mit 36,65 m² im zweiten Stock eines Wohngebäudes mit insgesamt fünfzehn im Bau befindlichen Wohnungen zu verkaufen, geplanter Einzug Sommer 2026.

Es besteht aus: einem Schlafzimmer, Wohnzimmer + Küche + Esszimmer, Badezimmer und Terrasse.

DIE WOHNUNG HAT MEERBLICK!!!

Es befindet sich in exzellenter Lage, 300 m vom Meer und dem Strand Mali Dubrovnik, 600 m vom Strand Dubrovnik entfernt, in der Nähe von Geschäften, Cafés, Restaurants und allen anderen Annehmlichkeiten, die für einen angenehmen Urlaub benötigt werden!!

Es verfügt über einen Parkplatz.

Dokumentation vollständig.

Sehen Sie sich den Grundriss der Wohnung S11 an.

Eigenschaften

  • Pogled na more

Installationen

  • Elektrizität
  • Klärgrube
  • Voda

Merkmale

  • Balkon

Galerie

Daten

Ort Povljana
Kategorie Ferienwohnung
Baujahr 2025
Wohn- bzw. Grundstückfläche 36.65 m²
Umschwung / Gartenfläche
Zimmer Total 1
Anzahl der Schlafzimmer 1
Anzahl Badezimmer 1

Karte

Verkaufspreis:

plus 3 % Maklerprovision, Notar und Grundbuchkosten

Kontaktieren Sie das Verkaufspersonal

Bettina Lautenschläger

Mehr Informationen anfordern

Verkaufspreis:

€ 166’650.-

Kontaktiere uns

Weitere Informationen zu dieser Immobilie anfragen​