PAG – POVLJANA, WOHNUNG ZU VERKAUFEN 85,41 M2, AUSSICHT, NEU, AUFZUG, LAGE!!!!

Beschreibung

Pag – Povljana, Zweizimmerwohnung mit 85,41 m2 zum Verkauf im ersten Stock eines Wohngebäudes, Baujahr 2024, hochwertige Bauweise.
.
Es besteht aus: zwei Schlafzimmern, Wohnzimmer + Küche + Esszimmer, Flur, Badezimmer und Terrasse.
.
DER MEERBLICK WIRD AUS DER WOHNUNG ANGEBOTEN!!!
.
Es befindet sich in einer ausgezeichneten Lage, 260 m vom Meer und dem berühmten Strand von Dubrovnik entfernt, in der Nähe aller notwendigen Annehmlichkeiten für einen angenehmen Urlaub!!!
.
Es verfügt über einen KOSTENLOSEN Außenparkplatz und einen 3,50 m2 großen Abstellraum im Keller.
.
Das Gebäude verfügt über einen Aufzug.
.
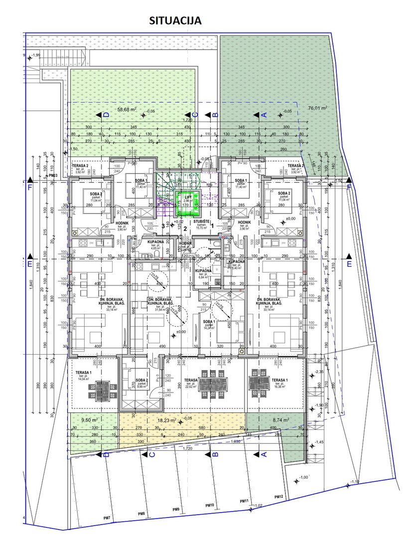
Grundrissansicht Wohnung Nummer 5.
.
Die Dokumentation ist in Ordnung.
.
Geplanter Einzug 06/2025.
.
Möglichkeit zum Kauf einer Garage:
Garage 1 – 36.180,00 Euro
Garage 2 – 67.140,00 Euro
Garage 3 – 44.280,00 Euro
Garage 4 – 80.100,00 Euro.

Eigenschaften

  • Meerblick
  • Pogled na more

Installationen

  • Elektrizität
  • Internet
  • Kanalisation
  • Telefon
  • Voda
  • Wasser

Merkmale

  • Aufzug
  • Speisekammer
  • Terrasse

Galerie

Daten

Ort Povljana
Kategorie Ferienwohnung
Baujahr 2024
Wohn- bzw. Grundstückfläche 85.41 m²
Umschwung / Gartenfläche
Zimmer Total 2
Anzahl der Schlafzimmer 2
Anzahl Badezimmer 2

Karte

Verkaufspreis:

plus 3 % Maklerprovision, Notar und Grundbuchkosten

Kontaktieren Sie das Verkaufspersonal

Bettina Lautenschläger

Mehr Informationen anfordern

Verkaufspreis:

€ 306’450.-

Kontaktiere uns

Weitere Informationen zu dieser Immobilie anfragen​