PAG – POVLJANA, WOHNUNG ZU VERKAUFEN 85,84 M2, AUSSICHT, NEU, AUFZUG, LAGE!!!!

Beschreibung

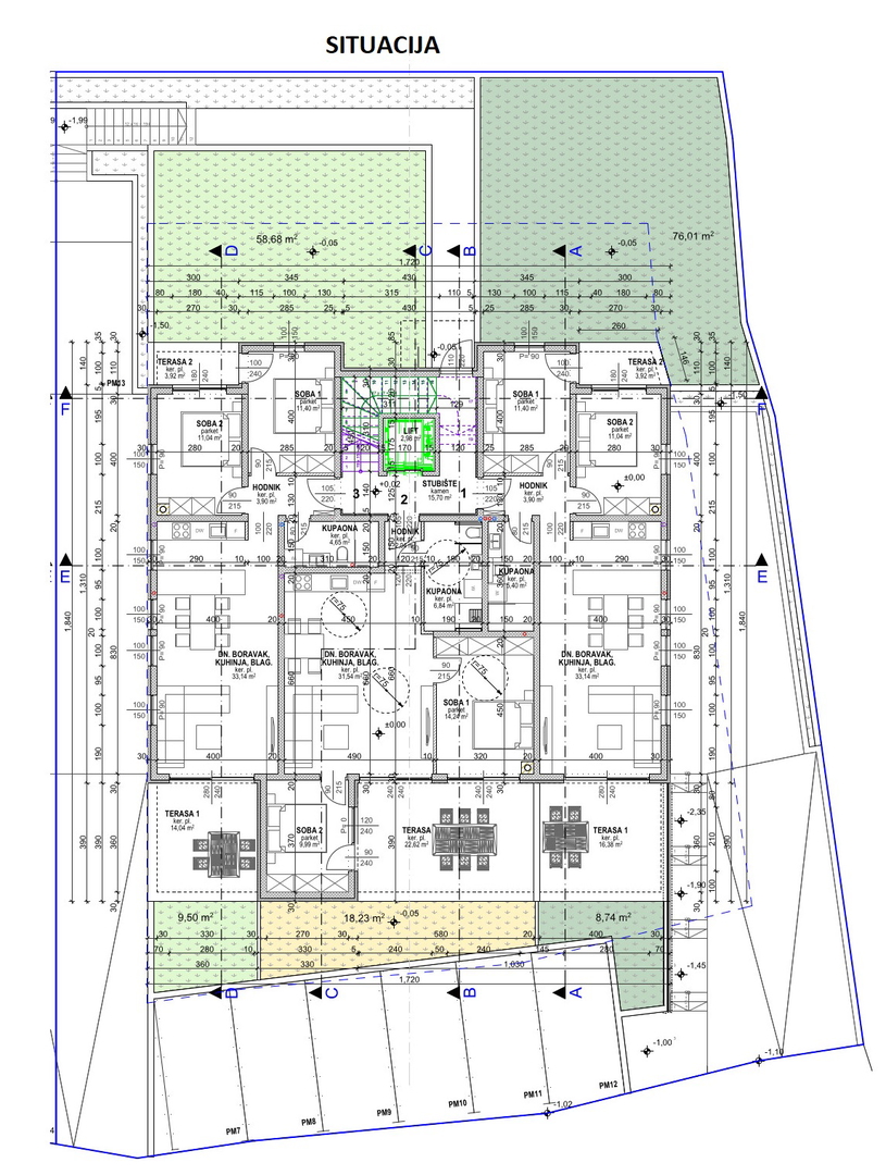
Pag – Povljana, Maisonette-Wohnung mit zwei Schlafzimmern, 85,84 m2, zu verkaufen im zweiten Stock eines Wohngebäudes, Baujahr 2024, hochwertige Bauweise.
.
Es besteht aus zwei Etagen:
– unten: ein Schlafzimmer, Flur, Badezimmer, Abstellraum und Terrasse.
– Galerie: ein Schlafzimmer, Wohnzimmer + Küche + Esszimmer, Flur, Badezimmer und Terrasse.
.
DER MEERBLICK WIRD AUS DER WOHNUNG ANGEBOTEN!!!
.
Es befindet sich in einer ausgezeichneten Lage, 260 m vom Meer und dem berühmten Strand von Dubrovnik entfernt, in der Nähe aller notwendigen Annehmlichkeiten für einen angenehmen Urlaub!!!
.
Es verfügt über einen Außenparkplatz und eine Terrasse auf der Galerie von 14,40 m2, die KOSTENLOS sind!!
.
Das Gebäude verfügt über einen Aufzug.
.
Grundrissansicht Wohnung Nummer 9.
.
Die Dokumentation ist in Ordnung.
.
Geplanter Einzug 06/2025.
.
Möglichkeit zum Kauf einer Garage:
Garage 1 – 36.180,00 Euro
Garage 2 – 67.140,00 Euro
Garage 3 – 44.280,00 Euro
Garage 4 – 80.100,00 Euro.

Eigenschaften

  • Meerblick
  • Pogled na more

Installationen

  • Elektrizität
  • Internet
  • Kanalisation
  • Telefon
  • Voda
  • Wasser

Merkmale

  • Aufzug
  • Balkon
  • Terrasse

Galerie

Daten

Ort Povljana
Kategorie Ferienwohnung
Baujahr 2024
Wohn- bzw. Grundstückfläche 85.84 m²
Umschwung / Gartenfläche
Zimmer Total 2
Anzahl der Schlafzimmer 2
Anzahl Badezimmer 2

Karte

Verkaufspreis:

plus 3 % Maklerprovision, Notar und Grundbuchkosten

Kontaktieren Sie das Verkaufspersonal

Bettina Lautenschläger

Mehr Informationen anfordern

Verkaufspreis:

€ 309’600.-

Kontaktiere uns

Weitere Informationen zu dieser Immobilie anfragen​