Zagreb – Rudeš, Dreizimmerwohnung von 72,6 m2 im Erdgeschoss eines im Bau befindlichen Wohngebäudes zu verkaufen, geplanter Einzugstermin Dezember 2024.
.
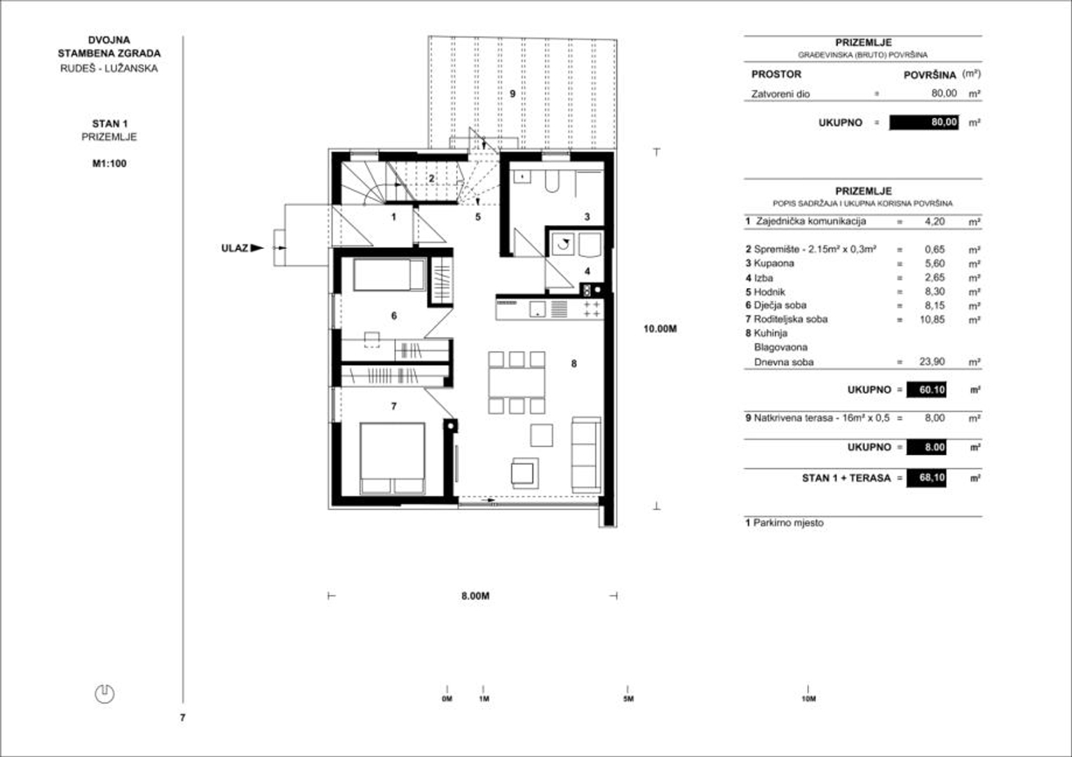
Es besteht aus: zwei Schlafzimmern, Wohnzimmer + Küche + Esszimmer, Abstellraum unter der Treppe, Eingangsbereich, Badezimmer und teilweise überdachter Terrasse.
.
Es verfügt über einen eigenen Garten, einen Parkplatz und einen Außenabstellraum.
.
Es befindet sich in einer großartigen Lage in der Nähe der Rudeš-Grundschule und in der Nähe aller Annehmlichkeiten für ein komfortables Leben.
.
Technische Beschreibung und Gerätebeschreibung:
–> Nettofläche:
– Abstellraum (unter der Treppe): 2,15 m2 x 0,25 = 0,54 m2 (netto)
– Badezimmer: 5,6 m2 x 1,0 = 5,6 m2 (netto)
– Raum: 3,96 m2 x 1,0 = 3,96 m2 (netto)
– Flur: 7,27 m2 x 1,0 = 7,27 m2 (netto)
– Kinderzimmer: 8,15 m2 x 1,0 = 8,15 m2 (netto)
– Doppelzimmer: 10,85 m2 x 1,0 = 10,85 m2 (netto)
– Küche + Esszimmer + Wohnzimmer: 23,57 m2 x 1,0 = 23,57 m2 (netto)
– überdachte Terrasse im Garten: 16,0 m2 x 0,5 = 8,0 m2 (netto)
– Garten: 9,0 m2 x 0,1 = 0,9 m2 (netto)
– Parkplatz: 13 m2 x 0,2 = 2,6 m2 (netto)
– Außenlagerung im Garten: 2,3 m2 x 0,5 = 1,15 m2 (netto)
GESAMTSUMME NETTO zu verkaufen = 72,6 m2
–> Konstruktion :
– Die Wände bestehen aus einer Kombination aus Beton und YTONG-Blöcken d=25 cm
– Stahlbetondeckenplatte
– Gebäude mit hoher Erdbebensicherheit konzipiert
– Flachdach aus Stahlbeton
– Trennwände aus Gipskarton mit Doppelbeschichtung
–> Energieklasse des Gebäudes:
– Eine +
–> Beläge:
– WDVS-Fassade
– hochwertige Keramik und Dreischicht-Eichenparkett CHEVRON (für Fußbodenheizung)
– Flachdach mit TPO-Folie abgedeckt
–> Ausrüstung:
– voll funktionsfähiges Badezimmer mit ebenerdiger Dusche, Konsolentoilette und Sanitärartikeln namhafter Hersteller (Geberit, Tece, Hansgrohe, Armal…)
– Video-Gegensprechanlage
– Jedes Zimmer verfügt über Internet- und TV-Einrichtungen
– Jedes Zimmer verfügt über eine separate Heizungssteuerung
–> Tischlerei
– PVC-Tischlerei 6 Kammern + 3 Dichtungen (GEALAN) in Anthrazitfarbe, mit elektrisch gesteuerten Rollläden und Moskitonetzen
– Glaswände sind Hebe-Schiebe-HST
– Innentüren aus Holz mit umfassenden Türpfosten, Magnetschloss und versteckten Scharnieren
– die Eingangstür zur Wohnung ist einbruch- und feuerhemmend
–> Infrastruktur:
– separater Stromzähler
– separater Wasserzähler
– Anschluss an das Kanalnetz
– Kabelnetzanschluss
– Vorbereitung für eine Ladestation für Elektrofahrzeuge
–> Heizung
– Wärmepumpe mit Fußbodenheizung + „lojtrica“ Heizkörper im Badezimmer
– Inverter-Klimagerät zum Heizen und Kühlen
– Wasseraufbereitung über Wärmepumpe
– Heizungsregelung über separate Thermostate in jedem Raum
– gemauerter Schornstein mit Anschlussmöglichkeit – Einbau eines Festbrennstoffofens möglich
–> Elektroinstallationen
– Anschlussleistung je Wohnung 7,36 kW
– Vorbereitung für Induktion (ausreichende Leistung)
– Vorbereitung für Elektroauto-Stromversorgung (an der Fassade)
– Telefon, Video-Gegensprechanlage, Fernseher, Internet
–> Besonderheiten
– die Möglichkeit, ein Innenprojekt entsprechend der Visualisierung zu erstellen
– ein außergewöhnlicher und seltener Ort
– die Möglichkeit, Veredelungsmaterialien auszuwählen (abhängig vom Fertigstellungsgrad des Projekts)
– geräumige Terrasse
– Möglichkeit eines Whirlpools
– die Möglichkeit, die gesamte Terrasse zu überdachen