ZAGREB – TREŠNJEVKA, WOHNUNG 53,57 M2, ZU VERKAUFEN, LAGE, NEU!!!

Beschreibung

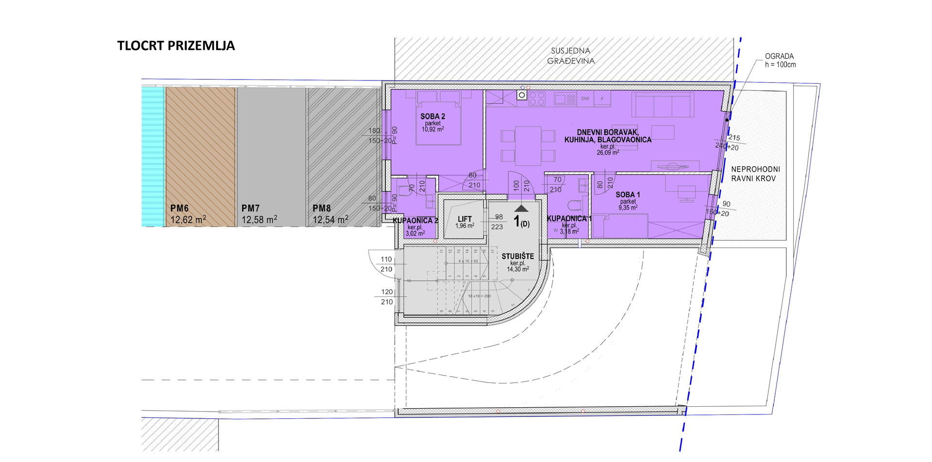
Zagreb – Trešnjevka, Dreizimmerwohnung von 53,57 m2 im Erdgeschoss eines im Bau befindlichen Wohngebäudes zu verkaufen, geplanter Einzugstermin 03/2026.

Es besteht aus: zwei Schlafzimmern, Wohnzimmer + Küche + Esszimmer, Flur und zwei Badezimmern.

Es befindet sich in einer großartigen Lage, in der Nähe von Geschäften, Cafés, Restaurants, Apotheken, Kirchen und allen anderen Annehmlichkeiten, die für ein komfortables Leben notwendig sind!

Es verfügt über einen Abstellraum von 2,61 m2.

Der Parkplatz ist nicht im Preis inbegriffen und es besteht die Möglichkeit, einen Außenparkplatz oder einen Garagenstellplatz zu wählen.

Dokumentation in Ordnung.

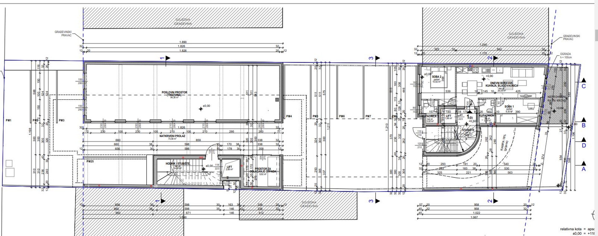
Sehen Sie sich den Grundriss der Wohnung Nummer 1 an.

Eigenschaften

Installationen

  • Elektrizität
  • Gas
  • Kanalisation
  • Voda
  • Wasser

Merkmale

  • Aufzug

Galerie

Daten

Ort Trešnjevka
Kategorie Stadtwohnung
Baujahr 2025
Wohn- bzw. Grundstückfläche 53.57 m²
Umschwung / Gartenfläche
Zimmer Total 2
Anzahl der Schlafzimmer 2
Anzahl Badezimmer 2

Karte

Verkaufspreis:

plus 3 % Maklerprovision, Notar und Grundbuchkosten

Kontaktieren Sie das Verkaufspersonal

Bettina Lautenschläger

Mehr Informationen anfordern

Verkaufspreis:

€ 321’420.-

Kontaktiere uns

Weitere Informationen zu dieser Immobilie anfragen​