NEW BUILDING DUBRAVA AVENUE, APARTMENT 64.17M2, FOR SALE, LOCATION!

Description

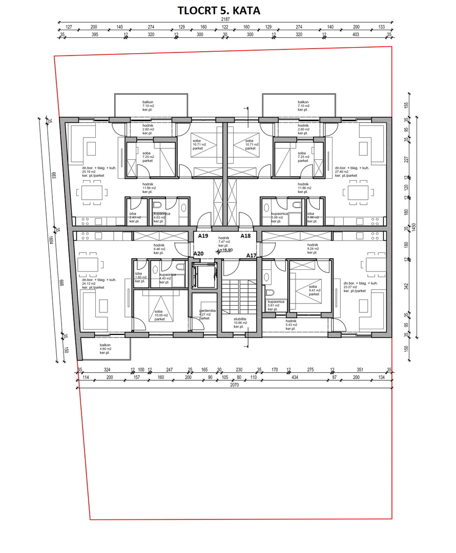
Zagreb – Donja Dubrava, two-bedroom apartment of 64.17 m2 for sale on the fifth floor of a residential building with a total of twenty apartments under construction, construction to begin in spring 2026 and planned completion in 2027.
.
It consists of: two bedrooms, living room + kitchen + dining room, hallway, utility room, wardrobe, bathroom and balcony.
.
It is located in a great location, close to schools, kindergartens, shops and all other facilities necessary for a comfortable life!

Possibility of purchasing a parking space in the garage at a price of €25,000.

The building has an elevator.

Documentation in order.
.
Floor plan view apartment marked A19.

Locations

Utilities

  • Electricity
  • Internet
  • Phone
  • Sewerage
  • Water

Features

  • Balcony
  • Elevator
  • Pantry

Gallery

Data

Lokacija Donja Dubrava
Kategorija Apartment
Kupaonice 2026
Stambeni prostor ili površina okućnice 64.17 m²
Površina vrta
Ukupno soba 3
Broj spavaćih soba 2
Broj kupaonica 2

Map

Selling Price:

plus 3% provizije za posredovanje, javnobilježničke i zemljišnoknjižne troškove

Contact the sales staff

Bettina Lautenschlager

Request more information

Prodajna cijena:

€ 311’224.-

Kontaktiere uns

Weitere Informationen zu dieser Immobilie anfragen​