PAG, APARTMENT FOR SALE 74.81 M2, NEW, VIEW, LOCATION!!!

Description

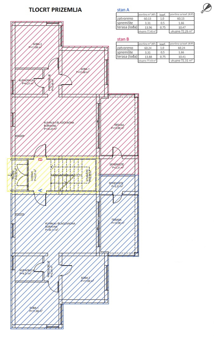
Pag, two-bedroom apartment of 74.81 m2 for sale on the ground floor of a residential building built in 2022, fully furnished, quality construction.
.
It consists of: two bedrooms, living room + kitchen + dining room, bathroom and terrace.
.
THE APARTMENT HAS A SEA VIEW!!!
.
It is located in a good location, 200 m from the sea, 460 m from the center of Pag, close to the bridge, shops and all the amenities needed for a pleasant vacation!!!
.
It has a parking space and storage room.
.
Documentation in order.
.
View the floor plan of apartment B.

Locations

  • Sea View

Utilities

  • Electricity
  • Internet
  • Phone
  • Septic tank
  • Voda
  • Water

Features

  • Pantry
  • Terrace

Gallery

Data

Lokacija Pag
Kategorija Holiday Apartment
Kupaonice 2022
Stambeni prostor ili površina okućnice 74.81 m²
Površina vrta
Ukupno soba 2
Broj spavaćih soba 2
Broj kupaonica 2

Map

Selling Price:

plus 3% provizije za posredovanje, javnobilježničke i zemljišnoknjižne troškove

Contact the sales staff

Bettina Lautenschlager

Request more information

Prodajna cijena:

€ 269’689.-

Kontaktiere uns

Weitere Informationen zu dieser Immobilie anfragen​