PAG – MANDRE, APARTMENT 79.03 M2, FOR SALE, NEW, LOCATION!!!

Description

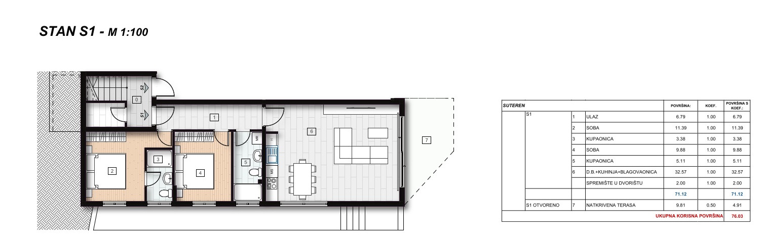
Pag – Mandre, two-bedroom apartment of 79.03 m2 for sale on the ground floor of a residential building with a total of seven apartments under construction, high-quality construction, planned move-in date 06/2025.
.
It consists of: two bedrooms, living room + kitchen + dining room, hallway, two bathrooms and a covered terrace.
.
It is located in an excellent location, 220 m from the sea and the beach, close to restaurants, cafes, shops and all other amenities needed for a pleasant vacation!!
.
It has a parking space and a storage room of 2 m2.
.
Documentation in order.

Locations

Utilities

  • Electricity
  • Internet
  • Phone
  • Septic tank
  • Voda
  • Water

Features

  • Pantry
  • Terrace

Gallery

Data

Lokacija Mandre
Kategorija Holiday Apartment
Kupaonice 2024
Stambeni prostor ili površina okućnice 79.03 m²
Površina vrta
Ukupno soba 2
Broj spavaćih soba 2
Broj kupaonica 2

Map

Selling Price:

plus 3% provizije za posredovanje, javnobilježničke i zemljišnoknjižne troškove

Contact the sales staff

Bettina Lautenschlager

Request more information

Prodajna cijena:

€ 276’605.-

Kontaktiere uns

Weitere Informationen zu dieser Immobilie anfragen​