PAG – POVLJANA, APARTMENT 68.65 M2, FOR SALE, SWIMMING POOL, GARAGE, NEW, GARDEN!!

Description

Pag – Povljana, two-room apartment of 68.65 m2 for sale on the first floor of a residential building built in 2023, quality construction.

It consists of: two bedrooms, living room + kitchen + dining room, hallway, bathroom, loggia and terrace.

It is located in an excellent location, 260 m from the sea and the beach, 380 m from the famous Mali Dubrovnik beach, close to shops, cafes, restaurants and all other amenities necessary for a pleasant and peaceful vacation!!!

It has a parking space with an electric car charging socket (each parking socket is connected to the electricity meter of the corresponding apartment), a 13.75 m2 garage, a 7m x 3m swimming pool and a 44 m2 garden.

Documentation in order.

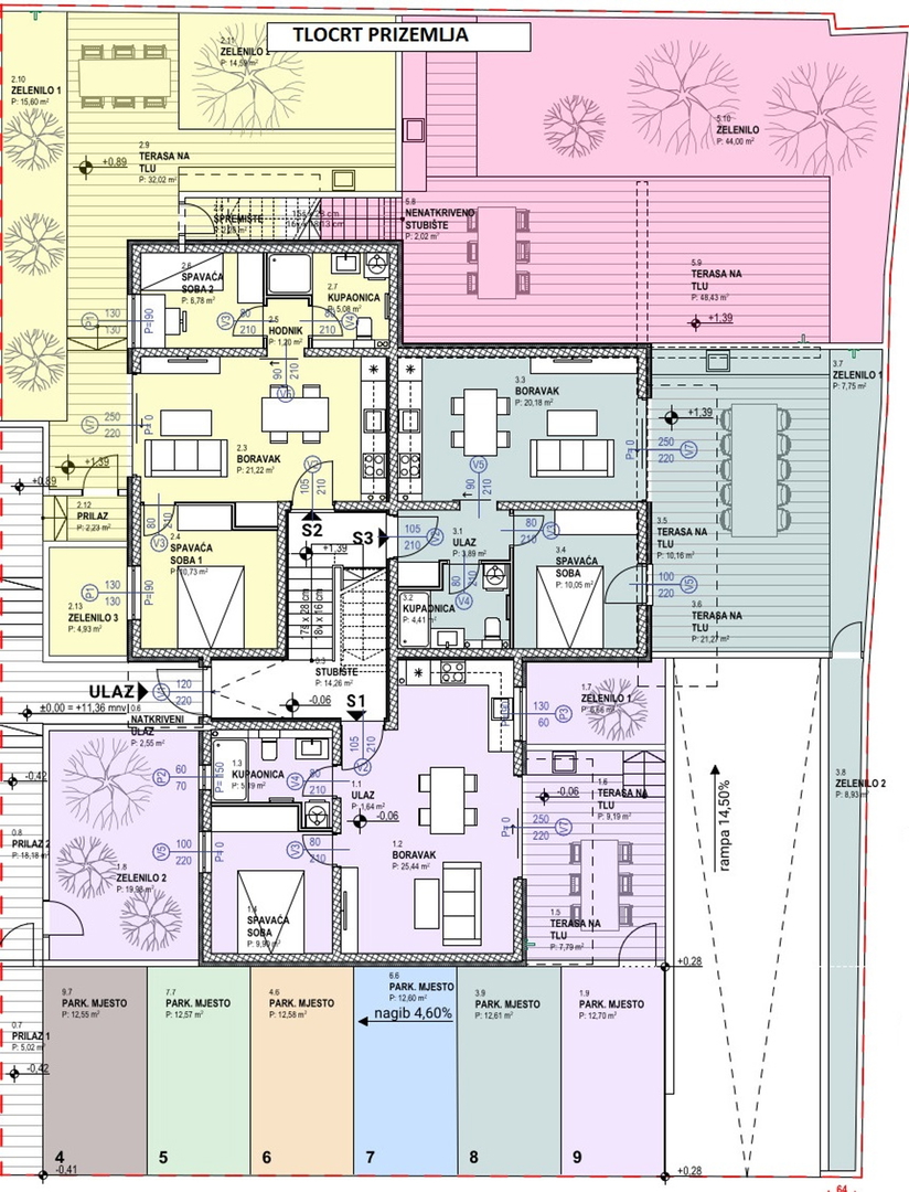
View the floor plan of apartment marked S5.

Locations

Utilities

  • Electricity
  • Internet
  • Phone
  • Sewerage
  • Water

Features

  • Garden
  • Loggia
  • Pool
  • Terrace

Gallery

Data

Lokacija Povljana
Kategorija Holiday Apartment
Kupaonice 2023
Stambeni prostor ili površina okućnice 68.65 m²
Površina vrta
Ukupno soba 2
Broj spavaćih soba 2
Broj kupaonica 2

Map

Selling Price:

plus 3% provizije za posredovanje, javnobilježničke i zemljišnoknjižne troškove

Contact the sales staff

Bettina Lautenschlager

Request more information

Prodajna cijena:

€ 310’000.-

Kontaktiere uns

Weitere Informationen zu dieser Immobilie anfragen​