NOVOGRADNJA AVENIJA DUBRAVA, STAN 64.17M2, PORDAJA, LOKACIJA!

Opis

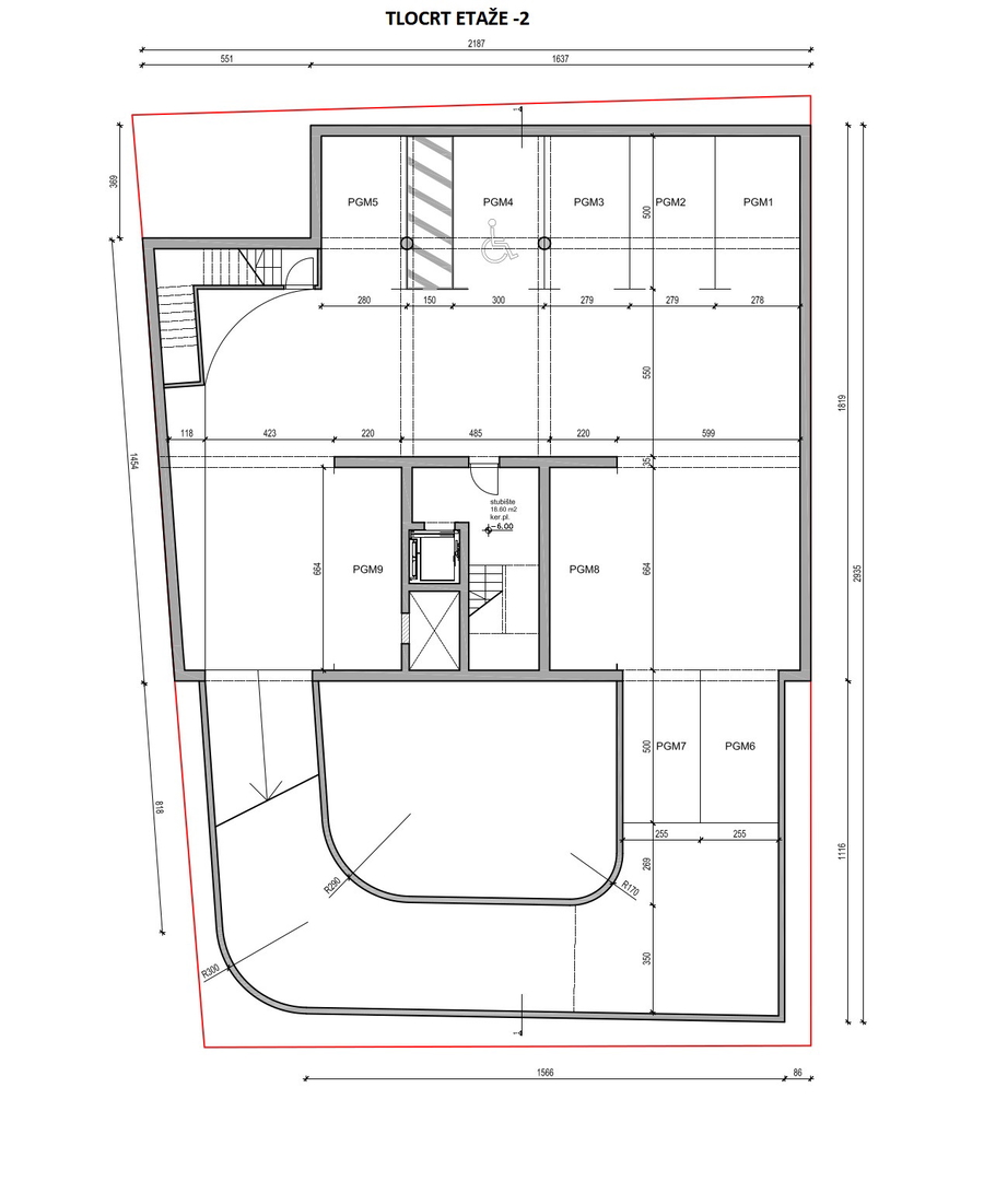
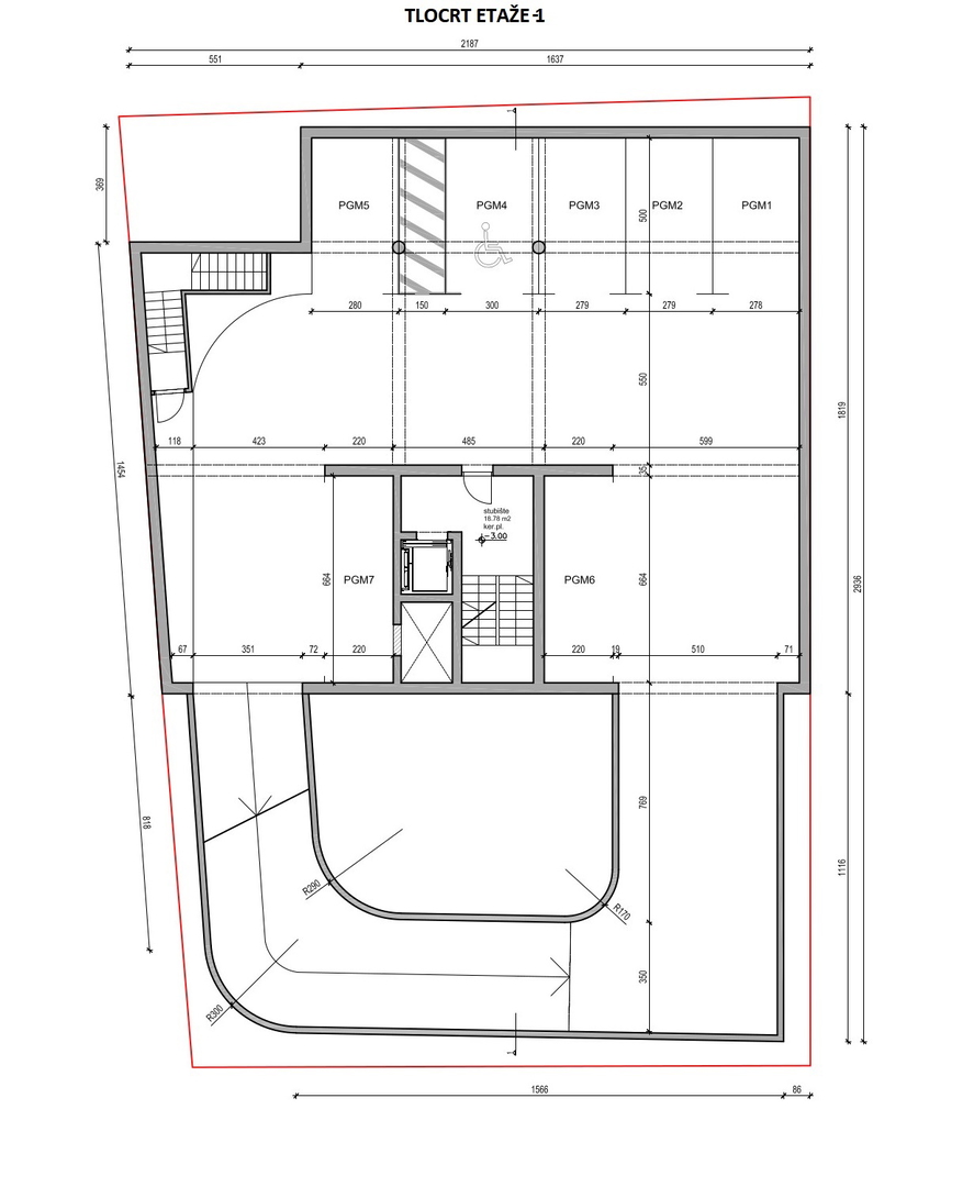
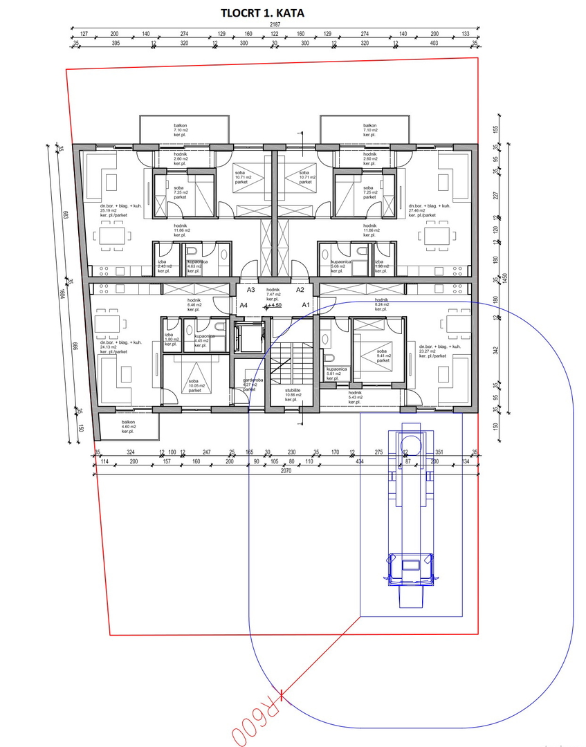
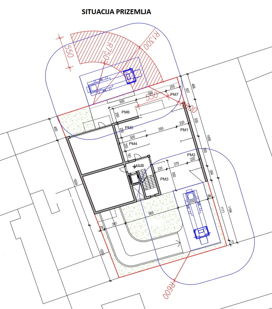
Zagreb – Donja Dubrava, prodaje se dvosobni stan od 64.17 m2 na prvom katu stambene zgrade sa ukupno dvadeset stanova u izgradnji, početak gradnje prolječe 2026. a planirani završetak 2027. godine. . Sastoji se od: dvije spavaće sobe, dnevnog boravka + kuhinja + blagovaona, hodnika, ostave, garderobe, kupaonice i balkona. . Nalazi se na odličnoj lokaciji, blizina škole, vrtića, trgovine te svih ostalih sadržaja potrebnih za ugodan život! Mogučnost kupnje parkirnog mjesta u garaži po cijeni od 25.000 €. Zgrada ima lift. Dokumentacija uredna. . Tlocrt gledati stan oznake A3.

Svojstva

Instalacija

  • Elektricitet
  • Internet
  • Odvodni kanal
  • Telefon
  • Voda

Karakteristike

  • Balkon
  • Dizalo
  • Smočnica

Galerija

Podaci

Lokacija Donja Dubrava
Kategorija Apartman
Kupaonice 2026
Stambeni prostor ili površina okućnice 64.17 m²
Površina vrta
Ukupno soba 3
Broj spavaćih soba 2
Broj kupaonica 2

Karta

Prodajna cijena:

plus 3% provizije za posredovanje, javnobilježničke i zemljišnoknjižne troškove

Kontaktirajte prodajno osoblje

Bettina Lautenschlager

Zatražite više informacija

Prodajna cijena:

€ 311’224.-